Добави обява

Всички обявив категорията Офиси за продажба в Област Шумен

Цена
Дата на публикуване
Квадратура
Етаж
Намерени: 184 обяви в категорията Офиси за продажба в Област Шумен
Продава офис, гр. нови пазар, област шумен

Продава офис, гр. нови пазар, област шумен

€ 15.000,00
bazar.bg Офиси за продажба Нови пазар 16 дни
Квадратура 17 m²
цена на кв.м 882,35 €
Представяме ви за продажба търговски обект - офис, разположен в идеалния център на гр. Нови пазар ( 27 км. от гр. Шумен)Обектът се намира в сграда тухлено строителство, в централната част на града.Характеристики на имота:* Помещението разполага с основна зала* Площ- 17.15 кв. м.* Размери 5 м на 3.4 м* Подова настилка - естествен паркет* Локация - централната част на града. Голям човекопоток, магазини и офиси, административни учреждения.За повече информация и оглед се свържете с нас.Предоставяме Ви висококачествена фотография и виртуални огледи на имота, БЕЗПЛАТНО юридическо обслужване и СЪДЕЙСТВИЕ при избора на ипотечно кредитиране.
Продава офис, гр. шумен, военно училище

Продава офис, гр. шумен, военно училище

€ 62.500,00
bazar.bg Офиси за продажба Шумен 16 дни
Квадратура 50 m²
цена на кв.м 1.250,00 €
!!!ПЕРФЕКТНА ЛОКАЦИЯ!!! ПРЕД АКТ 16!!!Офис НОВО СТРОИТЕЛСТВО в района на Военно училище!!! ЮЖНО помещение с площ от 50 кв.м. и собствен санитарен възел. Предлага се по БДС, на ниво замазка с изпълнени всички вътрешни инсталации, PVC дограма с троен стъклопакет. Подходящ е за офис, магазин, студио, козметичен салон и др. Има възможност за закупуване на ПАРКОМЯСТО.Има възможност да се преустрои за живеене!Изключително комуникативната му локация и перфектно състояние го прави идеален избор, както за Вас, така и за инвестиционните Ви намерения.Обява T229-4931НИЕ ВИ ПРЕДЛАГАМЕ: Безкомпромисно обслужване до финализиране на сделката, като ще получите БЕЗПЛАТНИ юридически консултации, съдействие за получаване на ИПОТЕЧЕН КРЕДИТ (до 100% финансиране!!!) при възможно НАЙ-ДОБРИ УСЛОВИЯ за клиента!За повече информация посетете офиса ни на адрес гр. Шумен, ул. Цар Иван Александър 80; тел.0894444532
Продава офис, гр. нови пазар, област шумен

Продава офис, гр. нови пазар, област шумен

€ 25.000,00
bazar.bg Офиси за продажба Нови пазар 22 дни
Квадратура 34 m²
цена на кв.м 735,29 €
Представяме ви за продажба търговски обект - офис, разположен в идеалния център на гр. Нови пазар (27 км. от гр. Шумен)Обектът се намира в сграда тухлено строителство, в централната част на града.Характеристики на имота:* Помещението разполага с основна зала* Площ- 34.30 кв. м.* Размери 7.50 м на 4.50 м* Подова настилка - естествен паркет* Локация - централната част на града. Голям човекопоток, магазини и офиси, административни учреждения.За повече информация и оглед се свържете с нас.Предоставяме Ви висококачествена фотография и виртуални огледи на имота, БЕЗПЛАТНО юридическо обслужване и СЪДЕЙСТВИЕ при избора на ипотечно кредитиране.
Продава офис, гр. шумен, център

Продава офис, гр. шумен, център

€ 130.000,00
bazar.bg Офиси за продажба Шумен 25 дни
Квадратура 98 m²
цена на кв.м 1.326,53 €
Агенция за имоти 'ДОМ' предлага за продажба офис, разположен в тухлена, санирана сграда на плоча с алуминиева гръцка дограма, находяща се в центъра на гр. Шумен, в непосредствена близост до Община, Съд, НАП, НОИ, Агенция по вписванията, нотариуси, адвокатски кантори и други. Офисът е на партерен етаж, и разполага с три офис помещения, обзаведени луксозно, тоалетна, сервизно помещение, както и идеални части от земята. Етажът е климатизиран, като може да бъде включен към локалното отопление на сградата на газ, като има и резервен вариант- котел на нафта.ПЪЛНО СЪДЕЙСТВИЕ И НАЙ-ДОБРИ УСЛОВИЯ ЗА КРЕДИТ!За допълнителна информация и огледи: Николай Бучкуджиев, тел. +359 897 925 444.
Продава офис, гр. шумен, център

Продава офис, гр. шумен, център

€ 130.000,00
bazar.bg Офиси за продажба Шумен 26 дни
Квадратура 98 m²
цена на кв.м 1.326,53 €
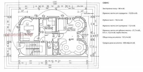
Продавам офис в центъра на гр. Шумен,Намиращ се на партерен етаж, състоящ се от три офис помещения обзаведени луксозно, тоалетна и сервизно помещение с обща площ на етажа 98 м.кв., както и 19,93 м.кв. от идеалните масти на сградата. Етажа е климатизиран, като може да бъде включен към локалното отопление на сградата на газ, като има и резервен вариант - котел на нафта. Сутеренна част състояща се от котелно и склад за гориво /нафта/ и санитарен възел с обща площ на етажа 18,5 м.кв., както и 7,2 м.кв. от идеалните части на сутерена.Към обекта са включени 23,64% от идеалните части от правото на строеж, заедно с 23,64% идеални части от земята, на които съответстват 27,7 м.кв., в т.ч. 12,5 м.кв. персонално парко място 1.Сградата е изградена на плоча, от тухла, алуминиева гръцка дограма с термомост, санирана, СОТ, контрол на достъпа, видеонаблюдение, оптичен интернет, с право на ползване на идеалните части от озеленен поддържан двор от 117 м.кв. Локация в непосредствена близост да държавни и общински институции: община, съд, НАП, НОИ, Агенция по вписванията, нотариуси, адвокатски кантори и други, както и в близост до училища и детски градини.За контакти тел.: 0898685150.
Продава офис, гр. шумен, център

Продава офис, гр. шумен, център

€ 75.160,00
bazar.bg Офиси за продажба Шумен 28 дни
цена на кв.м 1.326,53 €
Прециз имоти предлага на Ващето внимание : тухлено помещение, находящо се в централната част на гр. Шумен.Имота е подходящ за офис, студио за красота, арт ателие и още мн. др.дейности.Подходящ е и за инвестиция, с цел отдаване под наем.Подовата настилка на обекта е решена с ламинат, стените-латекс, таван-окачен.За повече информация, моля потърсете ни на тел.0897836446.
Продава офис, гр. шумен, център

Продава офис, гр. шумен, център

€ 130.000,00
bazar.bg Офиси за продажба Шумен 30+ дни
Квадратура 98 m²
цена на кв.м 1.326,53 €
Агенция My Place продава ОФИСИ, разположени на партерен етаж с площ 98 кв.м - Център, административна част на града. Състои се от: ТРИ обзаведени офис помещения, кухненски кът и тоалетна. Към имота има 19,93 м.кв. от идеалните части на сградата. Етажът е климатизиран, като може да бъде включен към локалното отопление на сградата на газ, като има и резервен вариант - котел на нафта. Сутеренна част състояща се от котелно и склад за гориво /нафта/ и санитарен възел с обща площ на етажа 18,5 м.кв., както и 7,2 м.кв. от идеалните части на сутерена. Към имота са включени 23,64% от идеалните части от правото на строеж, заедно с 23,64% идеални части от земята, на които съответстват 27,7 м.кв., в т.ч. 12,5 м.кв. персонално парко място 4. Сградата е изградена на плоча, от тухла, алуминиева гръцка дограма с термомост, санирана, СОТ, контрол на достъпа, видеонаблюдение, оптичен интернет, с право на ползване на идеалните части от озеленен поддържан двор от 117 м.кв. Локация в непосредствена близост да държавни и общински институции: община, съд, НАП, НОИ, Агенция по вписванията, нотариуси, адвокатски кантори и други, както и в близост до училища и детски градини.За повече информация посетете нашия офис в гр. Шумен на бул. 'Велики Преслав' 52 или позвънете на 089 903 0155 - Владислав Маринов.НОМЕР НА ОБЯВА - 2590
Продава офис, гр. шумен, център

Продава офис, гр. шумен, център

€ 130.000,00
bazar.bg Офиси за продажба Шумен 30+ дни
Квадратура 98 m²
цена на кв.м 1.326,53 €
Продавам офис в центъра на гр. Шумен,Намиращ се на партерен етаж, състоящ се от три офис помещения обзаведени луксозно, тоалетна и сервизно помещение с обща площ на етажа 98 м.кв., както и 19,93 м.кв. от идеалните масти на сградата. Етажа е климатизиран, като може да бъде включен към локалното отопление на сградата на газ, като има и резервен вариант - котел на нафта. Сутеренна част състояща се от котелно и склад за гориво /нафта/ и санитарен възел с обща площ на етажа 18,5 м.кв., както и 7,2 м.кв. от идеалните части на сутерена.Към обекта са включени 23,64% от идеалните части от правото на строеж, заедно с 23,64% идеални части от земята, на които съответстват 27,7 м.кв., в т.ч. 12,5 м.кв. персонално парко място 4.Сградата е изградена на плоча, от тухла, алуминиева гръцка дограма с термомост, санирана, СОТ, контрол на достъпа, видеонаблюдение, оптичен интернет, с право на ползване на идеалните части от озеленен поддържан двор от 117 м.кв. Локация в непосредствена близост да държавни и общински институции: община, съд, НАП, НОИ, Агенция по вписванията, нотариуси, адвокатски кантори и други, както и в близост до училища и детски градини.
Продава офис, гр. шумен, център

Продава офис, гр. шумен, център

€ 130.000,00
bazar.bg Офиси за продажба Шумен 30+ дни
Квадратура 98 m²
цена на кв.м 1.326,53 €
Продава офис, гр. шумен, център

Продава офис, гр. шумен, център

€ 199.400,00
bazar.bg Офиси за продажба Шумен 30+ дни
Квадратура 280 m²
цена на кв.м 712,14 €
Продаваме ДВА ЕТАЖА от къща, с тавански етаж и изби с обща РЗП 280 кв.м. Двата етажа са по 85 кв.м. застроена площа а таванския 77 кв.м. Избата е 40 кв.м. Сградата е монолитна конструкция.Първият етаж се състои от три големи стаи които са свързани с врати по между си а също така имат и отделни входове от коридора.На етажа има и четвърта по малка стая която се ползва за килер/хранилище. Вторият етаж е с с различно разпределение, като двете стаи са обединени в една просторна стая с преход към втора голяма стая.На етажа има и трета стая, която може да се обособи като кухненски бокс,складово помещение или хранилище.Таванския етаж е идентичен с първия етаж. Имотът е бил офис сграда. Подходящ е и за комбинация между офиси на първия етаж и жилище на втория и таванския етажи.Може да се преустрои в клиника или медицински център тъй като местоположението на сградата е в близост до поликлиника.Цената на целия имот е 199400 Евро.Етажите са със отделни кадастрални номера и могат да се продават по отделно. Възможната комбинация е втория с таванския етаж на цена от 115 000 Евро и Първият етаж на цена 85000Евро.ЗА ПОВЕЧЕ ИНФОРМАЦИЯ И ОГЛЕДИ на тел.: 0887804491 Катя Белчева и тел: 0888133854 - Христофор КрумовАгенция Билдинг тайм е професионален посредник в сделките с недвижими имоти от 30 години.Гарантираме качествено обслужване и консултиране в целия процес от огледа до финализиране на сделката при нотариус.Консултираме и оказваме пълно съдействие при кредитиране като подбираме най-изгодния за вас вариант. Предлагаме проверени имоти и безплатни юридически консултации.
Продава офис, гр. шумен, център

Продава офис, гр. шумен, център

€ 91.900,00
bazar.bg Офиси за продажба Шумен 30+ дни
Квадратура 62 m²
цена на кв.м 1.482,26 €
Продаваме помещение на полусутеренно ниво в новостроящя се жилищна кооперация на метри от пешеходната зона на центъра на гр. Шумен. Помещението е с квадратура - 61.97 кв.м. и би могло да бъде - ОФИС, АТЕЛИЕ, СЧЕТОВОДНА КЪЩА, СТУДИО за козметика, фризьорски и други услуги, ЛЕКАРСКИ кабинет, МАСАЖНО студио, както и за отдаване ПОД НАЕМ.Сградата е с акт 14 и това дава възможност за теглене на кредит при необходимост.Цената е 91500 евро ЗА ПОВЕЧЕ ИНФОРМАЦИЯ И ОГЛЕДИ НА ТЕЛ.:Катя Белчева - 0887804491Христофор Крумов - 0888133854Огледи по всяко време в светлата част на деня.Агенция Билдинг тайм е професионален посредник в сделките с недвижими имоти от 33 години.Гарантираме качествено обслужване и консултиране в целия процес от огледа до финализиране на сделката при нотариус.Консултираме и оказваме пълно съдействие при кредитиране като подбираме най-изгодния за вас вариант. Предлагаме проверени имоти и безплатни юридически консултации
???? офис в новострояща се сграда – отлична инвестиция!

???? офис в новострояща се сграда – отлична инвестиция!

€ 91.900,00
bazar.bg Офиси за продажба Шумен 30+ дни
Квадратура 62 m²
цена на кв.м 1.482,26 €
Офис в новострояща се сграда – отлична инвестиция!Предлагаме Ви офис помещение в модерна сграда ново строителство с Акт 14, разположена в предпочитан район. Площ: 62 кв.м. Изложение: Изток Етаж: 1 от 5 Степен на завършеност: По БДС Цена: 91 900 €Имотът е подходящ както за собствен бизнес, така и за инвестиция с цел отдаване под наем. Отлична локация и функционално разпределение.⸻ Ние предлагаме пълно съдействие: Помощ при кандидатстване и одобрение за ипотечен кредит Подготовка на цялата необходима документация до финализиране на сделката Професионално обслужване до получаване на ключовете За повече информация и организиране на оглед:Очакваме Ви в офиса ни в гр. Шумен, ул. „Хан Омуртаг“ №3Свържете се с нас още днес!
Продава офис, гр. шумен, център

Продава офис, гр. шумен, център

€ 91.900,00
bazar.bg Офиси за продажба Шумен 30+ дни
Квадратура 62 m²
цена на кв.м 1.482,26 €
???? Офис в новострояща се сграда отлична инвестиция!Предлагаме Ви офис помещение в модерна сграда ново строителство с Акт 14, разположена в предпочитан район.???? Площ: 62 кв.м.???? Изложение: Изток???? Етаж: 1 от 5???? Степен на завършеност: По БДС???? Цена: 91 900 Имотът е подходящ както за собствен бизнес, така и за инвестиция с цел отдаване под наем. Отлична локация и функционално разпределение.✅ Ние предлагаме пълно съдействие:✔ Помощ при кандидатстване и одобрение за ипотечен кредит✔ Подготовка на цялата необходима документация до финализиране на сделката✔ Професионално обслужване до получаване на ключовете???? За повече информация и организиране на оглед:Очакваме Ви в офиса ни в гр. Шумен, ул. Хан Омуртаг 3Свържете се с нас още днес!
Продава офис, гр. шумен, център

Продава офис, гр. шумен, център

€ 126.000,00
bazar.bg Офиси за продажба Шумен 30+ дни
Квадратура 92 m²
цена на кв.м 1.369,57 €
Обади се сега и цитирай този КОД: 685939 Предлагаме за продажба офис с площ 92,96 кв.м, разположен в централната част на гр. Шумен, в модерна сграда ново строителство. Имотът е изключително подходящ за офис дейност, кантора, счетоводна или консултантска фирма, медицински кабинет и други бизнес предназначения. Офисът се намира на комуникативно място с отличен достъп, в близост до институции, търговски обекти и спирки на градски транспорт. Сградата е с представителни общи части и съвременна визия, което допринася за престижно бизнес присъствие.За допълнителна информация и нови оферти посетете www.address.bg или се обадете на телефон 0893314443 и 054/820850
Продава офис, гр. шумен, център

Продава офис, гр. шумен, център

€ 102.000,00
bazar.bg Офиси за продажба Шумен 30+ дни
цена на кв.м 1.369,57 €
Обади се сега и цитирай този КОД: 685933 Предлагаме за продажба офис с площ 75,03 кв.м, разположен в централната част на гр. Шумен, в модерна сграда ново строителство. Имотът е изключително подходящ за офис дейност, кантора, счетоводна или консултантска фирма, медицински кабинет и други бизнес предназначения. Офисът се намира на комуникативно място с отличен достъп, в близост до институции, търговски обекти и спирки на градски транспорт. Сградата е с представителни общи части и съвременна визия, което допринася за престижно бизнес присъствие.За допълнителна информация и нови оферти посетете www.address.bg или се обадете на телефон 0893314443 и 054/820850
Продава офис, гр. шумен, център

Продава офис, гр. шумен, център

€ 89.000,00
bazar.bg Офиси за продажба Шумен 30+ дни
Квадратура 45 m²
цена на кв.м 1.977,78 €
Продава се офис, находящ се в административен център Шумен - до Съдебна палата и Адвокатска колегия. Ново строителство, функционираща офис сграда с асансьор. Офисът се намира на трети етаж, квадратура 45 кв.м, южно изложение, собствен санитарен възел, състоящ се от две помещения, напълно обзаведен.
Продава офис, гр. шумен, център

Продава офис, гр. шумен, център

€ 128.000,00
bazar.bg Офиси за продажба Шумен 30+ дни
Квадратура 46 m²
цена на кв.м 2.782,61 €
Помещение след ОСНОВЕН ремонт - кв. Център! Имотът е със статут на офис и с площ от 46 кв.м. Разполага със собствен санитарен възел, кухненски бокс и килер. Подобрения: PVC дограма, подовите настилки са теракота. Отоплението е посредством КЛИМАТИК. Предлага се НЕОБЗАВЕДЕН. Подходящ е за офис, магазин, кантора, козметично студио, медицински кабинет и др. Изложение: ИЗТОК.ОТЛИЧНА ЛОКАЦИЯ! Намира се в ТОП ЦЕНТЪР, в близост до ГЛАВНА пешеходна алея, поликлиника, банкови институции, магазини, детски площадки, автобусни спирки и др.Обява T225 - 4684НИЕ ВИ ПРЕДЛАГАМЕ: Безкомпромисно обслужване до финализиране на сделката, като ще получите БЕЗПЛАТНИ юридически консултации, съдействие за получаване на ИПОТЕЧЕН КРЕДИТ (до 100% финансиране!!!) при възможно НАЙ-ДОБРИ УСЛОВИЯ за клиента!За повече информация посетете офиса ни на адрес гр. Шумен, ул. Цар Иван Александър 80; тел: 0894444532.
Продава офис, гр. шумен, център

Продава офис, гр. шумен, център

€ 45.000,00
bazar.bg Офиси за продажба Шумен 30+ дни
цена на кв.м 2.782,61 €
В ЦЕНТЪРА НА ГРАДА!ПЕРФЕКТЕН ЗА БИЗНЕС ИЛИ ИНВЕСТИЦИЯ!!!Агенция ФАВОРИТ ВИ предлага да закупите ИНВЕСТИЦИОНЕН ИМОТ , ново строителство , в административната част на гр.Шумен до Съдебна палата, Полиция, Адвокатска колегия . Площ 25 кв.м .РАЗПРЕДЕЛЕНИЕ : помещение с голяма ВИТРИНА, антре, санитарен възел . В отлично състояние, след подобрения, завършен до ключ. Статут на ТЪРГОВСКИ ОБЕКТ, разположен на партерно ниво в сграда със смесено предназнамение Подходящо е за почти всякакъв вид дейност, като магазин, козметичен салон, счетоводна кантора, офис и др. Прекрасно и високо доходоносно помещение.Обява НС-1185За огледи и допълнителна информация позвънете на посочения телефон - 0896625810. Агенцията предлага съдействие при кредитиране и пълно юридическо обслужване. Може да ни потърсите за други атрактивни оферти, консултации и изготвяне на документи.
Продава  офис град Шумен, Център
      57 кв.м

Продава офис град Шумен, Център 57 кв.м

€ 1.890.009.663.417,00
imoti.com Офиси за продажба Шумен 30+ дни
Квадратура 57 m²
Етаж 1
цена на кв.м 33.158.064.270,47 €
Имоти 'ЕЛЕНА МИНАС' предлага за продажба ОФИС на ПЪРВИ етаж над магазини с лице на ГЛАВЕН булевард в ЦЕНТРАЛНАТА част на града. Състои се от коридор, две стаи с големи витрини и баня с тоалет. Изложение ЮГ. Имотът в момента се ползва от дългогодишни наематели с действащ бизнес, подходящ е за инвестиция и живеене! Намира се в сграда с контролиран достъп.
Продава  офис град Шумен, Център
      21 кв.м

Продава офис град Шумен, Център 21 кв.м

€ 1.050.005.368.565,00
imoti.com Офиси за продажба Шумен 30+ дни
Квадратура 21 m²
цена на кв.м 50.000.255.645,95 €
???? Самостоятелен офис в идеален център на гр. Шумен отлична локация и паркомястоПредлагаме за продажба самостоятелен офис с изключително стратегическо местоположение в центъра на гр. Шумен. Имотът се намира в непосредствена близост до всички ключови институции, административни сгради, банки и офис сгради, като същевременно е разположен на тихо, но много комуникативно място рядко срещана комбинация.???? Ключови предимства на имота (силни пазарни акценти)Идеален център първокласна локацияСамостоятелен обект без споделени помещенияПаркомясто изключително ценно предимство в централната част на градаПодходящ както за офис, така и за кабинет, студио, малък бизнес или инвестицияНисък разход за поддръжка и експлоатация???? Характеристики на имотаПлощ: 21 кв.м.Разпределение:Офис помещениеОтделна тоалетнаМалък свързващ коридорДограма: PVCОтопление: климатик икономично и практичноСтатус: Самостоятелна партида към ВиК✨ Подходящ за:адвокатски или нотариален кабинетсчетоводна кантораконсултантски услугионлайн бизнес / студиокозметичен кабинет (след необходимите разрешения)инвестиция за отдаване под наем???? Защо този офис е отлична покупка?Локация, която гарантира постоянен поток от хораСамостоятелност и ниски месечни разходиИдеален за личен бизнес или като дългосрочна инвестицияПаркомястото прави имота още по-ценен и търсен
Продава  офис град Шумен, Център
      37 кв.м

Продава офис град Шумен, Център 37 кв.м

€ 370.007.236.571,00
imoti.com Офиси за продажба Шумен 30+ дни
Квадратура 37 m²
Етаж 2
цена на кв.м 10.000.195.583,00 €
Обади се сега и цитирай този КОД: 612877Описание:ОФИС в Центъра на гр. Шумен. Площта на имота е 37 кв.м, разделена на две помещения. Намира се на втори етаж в офис сграда. Отоплението е решено чрез климатик. В близост до поликлиника, банки и пешеходна зона на града.За допълнителна информация и нови оферти посетете www.address.bg или се обадете на посочения телефонен номер.Брокер: Антония Петрова
Продава  офис град Шумен, Пазара
      80 кв.м

Продава офис град Шумен, Пазара 80 кв.м

€ 11.600.022.687.628,00
imoti.com Офиси за продажба Шумен 30+ дни
Квадратура 80 m²
Етаж 2
цена на кв.м 145.000.283.595,35 €
Обади се сега и цитирай този КОД: 673217!ЕКСКЛУЗИВНО ОТ АДРЕС!Светъл и функционален офис с отлична локация на Крайречен булевард в гр. Шумен.Помещението е подходящо за кантора, консултантска дейност, счетоводен офис, учебен център, дизайнерско студио, IT компания и други административни или творчески дейности.Характеристики: Площ: 80 кв.м Големи прозорци с естествена светлина Настилки: гранитогрес Отопление/охлаждане: климатик Възможност за външна реклама и брандиранеПредимства: Отлична локация с лесен достъп В близост до административни сгради и търговски обекти Възможност за свободно паркиране в района Подходящ както за стартиращ, така и за утвърден бизнесЗа допълнителна информация и нови оферти посетете www.address.bg или се обадете на телефон 0893314443 и 054/820850
Продава  офис град Шумен, Военно училище
      1100 кв.м

Продава офис град Шумен, Военно училище 1100 кв.м

€ 1.330.000.260.125.390,00
imoti.com Офиси за продажба Шумен 30+ дни
Квадратура 1100 m²
цена на кв.м 1.209.091.145.568,54 €
ТРИЕТАЖНА АДМИНИСТРАТИВНО-ПРОИЗВОДСТВЕНА СГРАДА, след направен ОСНОВЕН РЕМОНТ, с прилежаща търговска площ от 1100кв.м. На всеки етаж има разположени по четири производствени зали, подходящи и за офис дейност, като на втори и трети етаж има и сервизни помещения. Дограмите са изцяло сменени с PVC, а настилките са от теракот и гранитогрес. Сградата е изцяло санирана с фасадна изолация и мазилка. Намира се на пет минути от Централна пешеходна зона. Подходяща е за административен ,медицински или учебен център, ветеринарна клиника, производство. Код :297728. За допълнителна информация и нови оферти посетете: www.address.bg или позвънете на телефони на Агенцията: 0893314443 и 054/ 820 850. Брокер - Антония Петрова
Продава  офис град Шумен, Център
      117 кв.м

Продава офис град Шумен, Център 117 кв.м

€ 12.000.023.469.960,00
imoti.com Офиси за продажба Шумен 30+ дни
Квадратура 117 m²
цена на кв.м 102.564.303.162,05 €
⚜️Агенция ШуменЪ ⚜️ Ви предлага, функционално офис помещение от 117 кв.м в отлично местоположение, непосредствено до Окръжен Градския Съд- гр.Шумен .✅ Офисът е идеално проектиран за съвременен бизнес, като разполага с основна работна зона, подходяща за екип до 5 работни места, оборудвана за ежедневно оперативно обслужване и екипна работа. ✅Към нея е обособен самостоятелен управленски кабинет, предлагащ спокойна работна среда за ръководни функции. Кабинетът е функционално свързан с комфортна заседателна/конферентна зала, подходяща за срещи с партньори, клиенти и вътрешни екипи. Помещението разполага със санитарен възел и отделна стая за кафе. ✅Отоплението е решено с локално парно (газ), като допълнително има и климатик. За сигурността на сградата са осигурени домофонна система, видеонаблюдение и СОТ система.Към имота са включени избено помещение от 18,5 кв.м, осигуряващо допълнително складово пространство, лично паркомясто от 12,5 кв.м и дворно място от 27,7 кв.м. Имотът предлага всички необходими условия за стартиране на успешен и организиран бизнес.⚜️⚜️⚜️⚜️⚜️⚜️⚜️⚜️⚜️⚜️⚜️⚜️⚜️⚜️⚜️⚜️⚜️⚜️Ние от 'ШуменЪ' Ви осигуряваме пълно съдействие от подготовката на документацията до изгодно жилищно кредитиране с преференциални условия.Обадете се СЕГА на 0878442703, за да организираме оглед и да започнем пътя към Вашия нов дом!
Продава офис, гр. шумен, център

Продава офис, гр. шумен, център

€ 25.560,00
bazar.bg Офиси за продажба Шумен 30+ дни
Квадратура 20 m²
цена на кв.м 1.278,00 €
За повече информация обадете ни се на тел: 0882 817 445 или 02 425 68 07 и цитирайте референтния номер на имота: Shu 88026. Отговорен брокер: Галина Кирилова Предлагаме уникална възможност за инвестиция в офис, разположен в административния център на града, в непосредствена близост до Съда, пешеходната зона, МБАЛ Шумен, училище, супермаркети, Филиал Шумен към Медицински университет Варна и др. Офисът (20 кв.м.) е разположен на 4-ти етаж в добре поддържана тухлена сграда, построена през 1980 г. Имотът, изложение юг/изток, е в отлично състояние, след ремонт - боядисан, нов под от ламинат, готов за ползване - практичен избор за различни професионални цели. Помещението е напълно обзаведено, което позволява незабавното му използване без необходимост от допълнителни инвестиции в обзавеждане. Ползва се общ санитарен възел на етажа. Офертата представлява практичен и добре разположен вариант за тези, които искат да създадат или разширят бизнеса си в централен район. С отличното си състояние и основни удобства в близост то представлява отлична възможност за всеки професионалист, който иска да инвестира във функционално работно пространство в центъра на Шумен. Оглед на имотаМожем да организираме оглед на имота спрямо нашия график и възможностите за достъп до него. Заявете вашето желание за оглед, като се свържете с отговорния за офертата брокер по имейл или телефон. Резервация на имотаИмотът може да бъде резервиран и свален от продажба със заплащане на депозит, след което се прекратява провеждането на огледи с други купувачи и започва подготовка на документите за сключване на предварителен и окончателен договор. Свържете се с отговорния брокер за подробна информация относно процедурата на покупка и начините за плащане. Жилищен кредитНие си партнираме с водещите български банки и можем да ви свържем с техните консултанти за информация и кандидатстване за кредит. ...
Продава офис, гр. каспичан, област шумен

Продава офис, гр. каспичан, област шумен

€ 56.250,00
bazar.bg Офиси за продажба Каспичан 30+ дни
Квадратура 101 m²
цена на кв.м 556,93 €
Банка ДСК продава собствен имот в гр. Каспичан, ул. Мадарски конник 42а .Представлява самостоятелен обект с идентификатор 36587.502.281.4.27 в подблоковото пространство. Бивш банков клон. Застроена площ 101,20 кв.м.Лице за контакт: Тодор Вълчков, Банка ДСК АД, 02/80 10 065, e-mail: [email protected].Предложена е индикативна офертна цена, окончателната продажна цена ще бъде определена на база постъпилите предложения от купувачите.КРАЕН СРОК за подаване на заявление за закупуване 22.01.2026 г.
Продава офис, гр. шумен, център

Продава офис, гр. шумен, център

€ 68.002,00
bazar.bg Офиси за продажба Шумен 30+ дни
Квадратура 48 m²
цена на кв.м 1.416,71 €
ул. Добри Войников 9-13Адв. кантора 27цена в EUR: 68 000 EURдопълнителен тел.:0889436708
Продава  офис град Шумен, Център
      21 кв.м

Продава офис град Шумен, Център 21 кв.м

€ 1.050.005.368.565,00
imoti.com Офиси за продажба Шумен 30+ дни
Квадратура 21 m²
Етаж 1
цена на кв.м 50.000.255.645,95 €
Офис за продажба с ПАРКОМЯСТО - кв. Център! Имотът е с площ от 21 кв.м. и се състои от офисна част и санитарен възел. ПОДОБРЕНИЯ: подменена ПВЦ дограма, подовата настилка е теракота. Отоплението е решено посредством КЛИМАТИК. Подходящо е за офис, козметично студио, ателие и др. Изложение: ЮГ.ТОП ЛОКАЦИЯ! Намира се в ЦЕНТРАЛНАТА част на града, в близост до административни учреждения, магазини, автобусни спирки и др.Обява T223 - 4641.НИЕ ВИ ПРЕДЛАГАМЕ: Безкомпромисно обслужване до финализиране на сделката, като ще получите БЕЗПЛАТНИ юридически консултации, съдействие за получаване на ИПОТЕЧЕН КРЕДИТ (до 100% финансиране!!!) при възможно НАЙ-ДОБРИ УСЛОВИЯ за клиента!За повече информация посетете офиса ни на адрес гр. Шумен, ул. Цар Иван Александър 80; тел: 0894444532
Продава офис, гр. шумен, център

Продава офис, гр. шумен, център

€ 105.000,00
bazar.bg Офиси за продажба Шумен 30+ дни
Квадратура 21 m²
цена на кв.м 5.000,00 €
???? Самостоятелен офис в идеален център на гр. Шумен отлична локация и паркомястоПредлагаме за продажба самостоятелен офис с изключително стратегическо местоположение в центъра на гр. Шумен. Имотът се намира в непосредствена близост до всички ключови институции, административни сгради, банки и офис сгради, като същевременно е разположен на тихо, но много комуникативно място рядко срещана комбинация.???? Ключови предимства на имота (силни пазарни акценти)Идеален център първокласна локацияСамостоятелен обект без споделени помещенияПаркомясто изключително ценно предимство в централната част на градаПодходящ както за офис, така и за кабинет, студио, малък бизнес или инвестицияНисък разход за поддръжка и експлоатация???? Характеристики на имотаПлощ: 21 кв.м.Разпределение:Офис помещениеОтделна тоалетнаМалък свързващ коридорДограма: PVCОтопление: климатик икономично и практичноСтатус: Самостоятелна партида към ВиК✨ Подходящ за:адвокатски или нотариален кабинетсчетоводна кантораконсултантски услугионлайн бизнес / студиокозметичен кабинет (след необходимите разрешения)инвестиция за отдаване под наем???? Защо този офис е отлична покупка?Локация, която гарантира постоянен поток от хораСамостоятелност и ниски месечни разходиИдеален за личен бизнес или като дългосрочна инвестицияПаркомястото прави имота още по-ценен и търсен
Продава  офис град Шумен, Център
      62 кв.м

Продава офис град Шумен, Център 62 кв.м

€ 9.190.017.974.078,00
imoti.com Офиси за продажба Шумен 30+ дни
Квадратура 62 m²
цена на кв.м 148.226.096.356,10 €
!!!ПЕРФЕКТНА ЛОКАЦИЯ!!! АКТ 14!!!Офис НОВО СТРОИТЕЛСТВО - кв. Център!!! ПРОСТОРНО помещение с площ от 62 кв.м. и собствен санитарен възел. Предлага се по БДС, на ниво замазка с изпълнени всички вътрешни инсталации, монтирани блиндирани входни врати, PVC дограма с троен стъклопакет. При желание от страна на купувачите може да се извършат довършителни строителни дейности. Подходящ е за офис, магазин, козметичен салон, фитнес зала и др. Изложение: ИЗТОК. Има възможност за закупуване на ПАРКОМЯСТО.Изключително комуникативната му локация и перфектно състояние го прави идеален избор, както за Вас, така и за инвестиционните Ви намерения.Обява T218-4560НИЕ ВИ ПРЕДЛАГАМЕ: Безкомпромисно обслужване до финализиране на сделката, като ще получите БЕЗПЛАТНИ юридически консултации, съдействие за получаване на ИПОТЕЧЕН КРЕДИТ (до 100% финансиране!!!) при възможно НАЙ-ДОБРИ УСЛОВИЯ за клиента!За повече информация посетете офиса ни на адрес гр. Шумен, ул. Цар Иван Александър 80; тел.0894444532
Продава  офис град Шумен, Център
      45 кв.м

Продава офис град Шумен, Център 45 кв.м

€ 9.150.017.895.845,00
imoti.com Офиси за продажба Шумен 30+ дни
Етаж 3
цена на кв.м 148.226.096.356,10 €
Офис за продажба - кв. Център! Имотът е с площ от 45 кв.м. и се състои от офисна част и санитарен възел. ПОДОБРЕНИЯ: подменена ПВЦ дограма, подовите настилка е теракота. Отоплението е решено посредством КЛИМАТИК. Подходящо е за офис, козметично студио, ателие и др. Изложение: ЮГ.ТОП ЛОКАЦИЯ! Намира се в ЦЕНТРАЛНАТА част на града, в близост до административни учреждения, магазини, автобусни спирки и др.Обява T208 - 3438НИЕ ВИ ПРЕДЛАГАМЕ: Безкомпромисно обслужване до финализиране на сделката, като ще получите БЕЗПЛАТНИ юридически консултации, съдействие за получаване на ИПОТЕЧЕН КРЕДИТ (до 100% финансиране!!!) при възможно НАЙ-ДОБРИ УСЛОВИЯ за клиента!За повече информация посетете офиса ни на адрес гр. Шумен, ул. Цар Иван Александър 80; тел: 0894444532
Продава  офис град Шумен, Център
      110 кв.м

Продава офис град Шумен, Център 110 кв.м

€ 17.000.033.249.110,00
imoti.com Офиси за продажба Шумен 30+ дни
Етаж 1
цена на кв.м 148.226.096.356,10 €
Помещението е с разпределение: просторна търговска част, санитарен възел. Подобрения: ПВЦ дограма, ВЪНШНА и ВЪТРЕШНА изолация. Отоплението е решено посредством КЛИМАТИК. Подовата настилка е теракота. Подходящо е за разнообразна дейност като: козметичен салон, офис, магазин, заведение и др.Локация: Намира се на възлово място, в близост до Главна пешеходна алея, училища, спирки и др.Обява T153-630НИЕ ВИ ПРЕДЛАГАМЕ: Безкомпромисно обслужване до финализиране на сделката, като ще получите БЕЗПЛАТНИ юридически консултации, съдействие за получаване на ИПОТЕЧЕН КРЕДИТ (до 100% финансиране!!!) при възможно НАЙ-ДОБРИ УСЛОВИЯ за клиента!За повече информация посетете офиса ни на адрес гр.Шумен, ул. Цар Иван Александър 80; тел.0894444532
Продава  офис град Шумен, Център
      57 кв.м

Продава офис град Шумен, Център 57 кв.м

€ 10.260.020.066.816,00
imoti.com Офиси за продажба Шумен 30+ дни
Квадратура 57 m²
цена на кв.м 180.000.352.049,40 €
Търговско помещение - кв. Център! Имотът е с площ 57 кв.м. и има собствен санитарен възел. Подовата настилка е ламиниран паркет. Отоплението/охлаждането е решено посредством КЛИМАТИК. Подходящо е за магазин, офис, лекарски кабинет, ателие, студио за красота, фитнес, аптека и др.Намира се на изключително комуникативно място, на партер, в непосредствена близост до детски градини, елитни училища, бизнес сгради, банкови клонове, търговски център, развлекателен център /включващ заведение за бързо хранене, фитнес зала, салон за красота и др./, Автогара, ЖП гара и др. Цената е без ДДС.Обява T195-2720НИЕ ВИ ПРЕДЛАГАМЕ: Безкомпромисно обслужване до финализиране на сделката, като ще получите БЕЗПЛАТНИ юридически консултации, съдействие за получаване на ИПОТЕЧЕН КРЕДИТ (до 100% финансиране!!!) при възможно НАЙ-ДОБРИ УСЛОВИЯ за клиента!За повече информация посетете офиса ни на адрес гр.Шумен, ул. Цар Иван Александър 80; тел.0894444532
Продава  офис град Шумен, Център
      49 кв.м

Продава офис град Шумен, Център 49 кв.м

€ 7.550.014.766.517,00
imoti.com Офиси за продажба Шумен 30+ дни
Квадратура 49 m²
Етаж 1
цена на кв.м 154.081.934.010,55 €
Помещението е с разпределение: просторна търговска част, санитарен възел. Подобрения: ПВЦ дограма, ВЪНШНА и ВЪТРЕШНА изолация. Отоплението е решено посредством КЛИМАТИК. Подовата настилка е теракота. Подходящо е за разнообразна дейност като: козметичен салон, офис, магазин, заведение и др.Локация: Намира се на възлово място, в близост до Главна пешеходна алея, училища, спирки и др.Обява T154.НИЕ ВИ ПРЕДЛАГАМЕ: Безкомпромисно обслужване до финализиране на сделката, като ще получите БЕЗПЛАТНИ юридически консултации, съдействие за получаване на ИПОТЕЧЕН КРЕДИТ (до 100% финансиране!!!) при възможно НАЙ-ДОБРИ УСЛОВИЯ за клиента!За повече информация посетете офиса ни на адрес гр.Шумен, ул. Цар Иван Александър 80; тел.0894444532
Продава  офис град Шумен, Център
      48 кв.м

Продава офис град Шумен, Център 48 кв.м

€ 7.000.013.690.810,00
imoti.com Офиси за продажба Шумен 30+ дни
Квадратура 48 m²
Етаж 2
цена на кв.м 145.833.618.558,54 €
Офис в ТУХЛЕНА сграда - кв. Център! Имотът е с площ от 48 кв.м. и разполага със собствен санитарен възел. Подобрения: PVC дограма, подовите настилки са теракота. Отоплението е посредством КЛИМАТИК. Предлага се ОБЗАВЕДЕН с наличните мебели. Подходящо е за офис, кантора, козметично студио, медицински кабинет и др. Изложение: ИЗТОК/ЮГ.ОТЛИЧНА ЛОКАЦИЯ! Намира се в ТОП ЦЕНТЪР, в близост до административни учреждения, магазини, детски площадки, автобусни спирки и др.Обява T222 - 4588НИЕ ВИ ПРЕДЛАГАМЕ: Безкомпромисно обслужване до финализиране на сделката, като ще получите БЕЗПЛАТНИ юридически консултации, съдействие за получаване на ИПОТЕЧЕН КРЕДИТ (до 100% финансиране!!!) при възможно НАЙ-ДОБРИ УСЛОВИЯ за клиента!За повече информация посетете офиса ни на адрес гр. Шумен, ул. Цар Иван Александър 80; тел: 0894444532
Продава  офис град Шумен, Център
      153 кв.м

Продава офис град Шумен, Център 153 кв.м

€ 15.300.029.924.199,00
imoti.com Офиси за продажба Шумен 30+ дни
Квадратура 153 m²
цена на кв.м 100.000.195.583,00 €
Сутеренен етаж от ТУХЛЕНА къща на плоча - ТОП ЦЕНТЪР ! Имотът е с площ от 153кв.м. и ДВА входа, което позволява да се ползва като ОФИС. Разпределението е следното: коридор, кухня с дневен тракт, ТРИ стаи, баня и тоалет отделно. Подобрения: ИЗЦЯЛО подменена PVC дограма, вътрешна и външна ИЗОЛАЦИЯ, изцяло подменена ел. инсталация. Подовите настилки са теракота на целият етаж. Отоплява се посредством КЛИМАТИК и КАМИНА в дневния тракт. Предлага се обзаведен. Изложение: ИЗТОК/ЮГ/ЗАПАД.ПЕРФЕКТНА ЛОКАЦИЯ на метри от Руски паметник! Локацията му го прави подходящ, както за живеене, така и за счетоводна къща, салон за красота, ОФИС и др..Обява E211 - 3481.НИЕ ВИ ПРЕДЛАГАМЕ: Безкомпромисно обслужване до финализиране на сделката, като ще получите БЕЗПЛАТНИ юридически консултации, съдействие за получаване на ИПОТЕЧЕН КРЕДИТ (до 100% финансиране!!!) при възможно НАЙ-ДОБРИ УСЛОВИЯ за клиента!За повече информация посетете офиса ни на адрес гр.Шумен, ул. Цар Иван Александър 80; тел: 0894444532
Продава  офис град Шумен, Център
      50 кв.м

Продава офис град Шумен, Център 50 кв.м

€ 1.030.005.266.306,00
imoti.com Офиси за продажба Шумен 30+ дни
Квадратура 50 m²
Етаж 2
цена на кв.м 20.600.105.326,12 €
Продава се ОФИС в централната част на града. Помещението е с площ от 50 кв.м. и се намира на втори етаж в административна сграда. Състои се от входно антре и офис с кухненска част. Има общ санитарен възел на етажа. Подходящо е както за офис, така и за магазин, сервиз, ателие, салон за красота или друг вид дейност.Обява T114 - 68НИЕ ВИ ПРЕДЛАГАМЕ: Безкомпромисно обслужване до финализиране на сделката, като ще получите БЕЗПЛАТНИ юридически консултации, съдействие за получаване на ИПОТЕЧЕН КРЕДИТ (до 100% финансиране!!!) при възможно НАЙ-ДОБРИ УСЛОВИЯ за клиента!За повече информация посетете офиса ни на адрес гр. Шумен, ул. Цар Иван Александър 80; тел. 0894444532
Продава  офис град Шумен, Център
      50 кв.м

Продава офис град Шумен, Център 50 кв.м

€ 19.600.010.021.321,00
imoti.com Офиси за продажба Шумен 30+ дни
Квадратура 50 m²
Етаж 2
цена на кв.м 392.000.200.426,42 €
Офис в сграда НОВО СТРОИТЕЛСТВО - кв. Център! Имотът е с площ от 50 кв.м., разполага с тераса и собствен санитарен възел. Подобрения: PVC дограма, подовите настилки са теракота. Отоплението е на КЛИМАТИК. Предлага се необзаведен. Подходящо е за офис, козметично студио, медицински кабинет и др.ОТЛИЧНА ЛОКАЦИЯ! Намира се в ТОП ЦЕНТЪР, в близост до административни учреждения, магазини, детски площадки, автобусни спирки и др.!Обява T211 - 3750НИЕ ВИ ПРЕДЛАГАМЕ: Безкомпромисно обслужване до финализиране на сделката, като ще получите БЕЗПЛАТНИ юридически консултации, съдействие за получаване на ИПОТЕЧЕН КРЕДИТ (до 100% финансиране!!!) при възможно НАЙ-ДОБРИ УСЛОВИЯ за клиента!За повече информация посетете офиса ни на адрес гр.Шумен, ул. Цар Иван Александър 80; тел.0894444532
Продава  офис град Шумен, Център
      57 кв.м

Продава офис град Шумен, Център 57 кв.м

€ 7.700.015.059.891,00
imoti.com Офиси за продажба Шумен 30+ дни
Етаж 1
цена на кв.м 392.000.200.426,42 €
Офис помещение в ИДЕАЛНИЯТ ЦЕНТЪР на град Шумен на първи етаж. Площта му е 57 кв.м. разполага със санитарно помещение и е завършен до ключ с ЮГоизточно изложение.✅Сградата е административна в непосредствена близост до Съдебната палата, Данъчна служба, Община Шумен, Нотариуси и други важни институции.
Продава  офис град Шумен, Център
      53 кв.м

Продава офис град Шумен, Център 53 кв.м

€ 7.200.014.081.976,00
imoti.com Офиси за продажба Шумен 30+ дни
Квадратура 53 m²
Етаж 1
цена на кв.м 135.849.322.301,43 €
Офис помещение в ИДЕАЛНИЯТ ЦЕНТЪР на град Шумен на първи етаж. Площта му е 53 кв.м. разполага със санитарно помещение и е завършен до ключ с ЮГоизточно изложение.✅Сградата е административна в непосредствена близост до Съдебната палата, Данъчна служба, Община Шумен, Нотариуси и други важни институции.
Продава  офис град Шумен, Център
      40 кв.м

Продава офис град Шумен, Център 40 кв.м

€ 400.007.823.320,00
imoti.com Офиси за продажба Шумен 30+ дни
Квадратура 40 m²
Етаж 2
цена на кв.м 10.000.195.583,00 €
Помещение с площ 40 кв.м. в ЦЕНТЪРА на града. Имота е подходящ за офис, кантора, фризьорски салон и други. Офисът е разположен в бизнес сграда в непосредствена близост до административни институции и пешеходна зона.
Продава  офис град Шумен, Център
      37 кв.м

Продава офис град Шумен, Център 37 кв.м

€ 370.007.236.571,00
imoti.com Офиси за продажба Шумен 30+ дни
Квадратура 37 m²
Етаж 2
цена на кв.м 10.000.195.583,00 €
Помещение с площ 37 кв.м. в ЦЕНТЪРА на града. Имота е подходящ за офис, кантора, фризьорски салон и други. Офисът е разположен в бизнес сграда в непосредствена близост до административни институции и пешеходна зона.
Продава офис, гр. шумен, център

Продава офис, гр. шумен, център

€ 23.469.960,00
bazar.bg Офиси за продажба Шумен 30+ дни
цена на кв.м 10.000.195.583,00 €
⚜️Агенция ШуменЪ ⚜️ Ви предлага, функционално офис помещение от 117 кв.м в отлично местоположение, непосредствено до Окръжен Градския Съд- гр.Шумен .✅ Офисът е идеално проектиран за съвременен бизнес, като разполага с основна работна зона, подходяща за екип до 5 работни места, оборудвана за ежедневно оперативно обслужване и екипна работа. ✅Към нея е обособен самостоятелен управленски кабинет, предлагащ спокойна работна среда за ръководни функции. Кабинетът е функционално свързан с комфортна заседателна/конферентна зала, подходяща за срещи с партньори, клиенти и вътрешни екипи. Помещението разполага със санитарен възел и отделна стая за кафе. ✅Отоплението е решено с локално парно (газ), като допълнително има и климатик. За сигурността на сградата са осигурени домофонна система, видеонаблюдение и СОТ система.Към имота са включени избено помещение от 18,5 кв.м, осигуряващо допълнително складово пространство, лично паркомясто от 12,5 кв.м и дворно място от 27,7 кв.м. Имотът предлага всички необходими условия за стартиране на успешен и организиран бизнес.⚜️⚜️⚜️⚜️⚜️⚜️⚜️⚜️⚜️⚜️⚜️⚜️⚜️⚜️⚜️⚜️⚜️⚜️Ние от 'ШуменЪ' Ви осигуряваме пълно съдействие от подготовката на документацията до изгодно жилищно кредитиране с преференциални условия.Обадете се СЕГА на 0878442703, за да организираме оглед и да започнем пътя към Вашия нов дом!
Продава  офис град Шумен, Център
      40 кв.м

Продава офис град Шумен, Център 40 кв.м

€ 400.007.823.320,00
imoti.com Офиси за продажба Шумен 30+ дни
Квадратура 40 m²
цена на кв.м 10.000.195.583,00 €
КОД НА ОБЯВА: Е437Естера естейт ви представя уникална възможност за инвестиция в центъра на Шумен! Този офис се намира на стратегическа локация, която ще подпомогне развитието на вашия бизнес. Общата площ на офиса е 40 кв. метра, които са интелигентно разпределени между двете просторни стаи. Това предлага гъвкавост и възможност за разнообразни конфигурации, които могат да отговарят на нуждите на различни бизнеси.Имотът е в отлично състояние, което позволява бързо започване на дейността без нужда от допълнителни инвестиции в ремонти или обновления.Цена: 40,000 - конкурентна цена за имот в центъра на града, която отразява отличните условия и потенциалът за бъдещо развитие.Ние ще ви помогнем не само да откриете желания имот, но и да го финансирате лесно, сигурно и без стрес. Свържете се с нас на тел. 0889999838, имейл: esteraestatebg@gmail.com, или посетете нашия офис: гр. Шумен, ул. Добри Войников 14, ет.2, офис 7.
Продава  офис град Шумен, Център
      37 кв.м

Продава офис град Шумен, Център 37 кв.м

€ 370.007.236.571,00
imoti.com Офиси за продажба Шумен 30+ дни
Квадратура 37 m²
Етаж 2
цена на кв.м 10.000.195.583,00 €
КОД НА ОБЯВА: Е435Естера естейт продава Офис в центъра на Шумен.Предлагаме на вашето внимание отличен офис, разположен в сърцето на Шумен, в оживен и стратегически разположен район, подходящ за разнообразни бизнес дейности. Имотът е с площ 37 кв.м. Пространството е функционално разпределено в две светли помещения, които могат да бъдат адаптирани според специфичните нужди на вашия бизнес. Офисът предлага комфортна и модерна работна среда, създавайки идеални условия за работа и посрещане на клиенти.Продажна цена на имота: 37000ЕБез значение дали търсите място за стартиращ бизнес или разширяване на съществуваща дейност, този офис в центъра на Шумен е вашето правилно решение.Ние ще ви помогнем не само да откриете желания имот, но и да го финансирате лесно, сигурно и без стрес. Свържете се с нас на тел. 0889999838, имейл: esteraestatebg@gmail.com, или посетете нашият офис: гр. Шумен, ул. Добри Войников 14, ет.2, офис 7.
Продава офис, гр. шумен, център

Продава офис, гр. шумен, център

€ 189.000,00
bazar.bg Офиси за продажба Шумен 30+ дни
цена на кв.м 10.000.195.583,00 €
Имоти 'ЕЛЕНА МИНАС' предлага за продажба ОФИС на ПЪРВИ етаж над магазини с лице на ГЛАВЕН булевард в ЦЕНТРАЛНАТА част на града. Състои се от коридор, две стаи с големи витрини и баня с тоалет. Изложение ЮГ. Имотът в момента се ползва от дългогодишни наематели с действащ бизнес, подходящ е за инвестиция и живеене! Намира се в сграда с контролиран достъп.
Продава офис, гр. шумен, център

Продава офис, гр. шумен, център

€ 20.066.816,00
bazar.bg Офиси за продажба Шумен 30+ дни
Квадратура 57 m²
цена на кв.м 352.049,40 €
Търговско помещение - кв. Център! Имотът е с площ 57 кв.м. и има собствен санитарен възел. Подовата настилка е ламиниран паркет. Отоплението/охлаждането е решено посредством КЛИМАТИК. Подходящо е за магазин, офис, лекарски кабинет, ателие, студио за красота, фитнес, аптека и др.Намира се на изключително комуникативно място, на партер, в непосредствена близост до детски градини, елитни училища, бизнес сгради, банкови клонове, търговски център, развлекателен център /включващ заведение за бързо хранене, фитнес зала, салон за красота и др./, Автогара, ЖП гара и др. Цената е без ДДС.Обява T195-2720НИЕ ВИ ПРЕДЛАГАМЕ: Безкомпромисно обслужване до финализиране на сделката, като ще получите БЕЗПЛАТНИ юридически консултации, съдействие за получаване на ИПОТЕЧЕН КРЕДИТ (до 100% финансиране!!!) при възможно НАЙ-ДОБРИ УСЛОВИЯ за клиента!За повече информация посетете офиса ни на адрес гр.Шумен, ул. Цар Иван Александър 80; тел.0894444532
Продава офис, гр. шумен, център

Продава офис, гр. шумен, център

€ 33.249.110,00
bazar.bg Офиси за продажба Шумен 30+ дни
Квадратура 110 m²
цена на кв.м 302.264,64 €
Помещението е с разпределение: просторна търговска част, санитарен възел. Подобрения: ПВЦ дограма, ВЪНШНА и ВЪТРЕШНА изолация. Отоплението е решено посредством КЛИМАТИК. Подовата настилка е теракота. Подходящо е за разнообразна дейност като: козметичен салон, офис, магазин, заведение и др.Локация: Намира се на възлово място, в близост до Главна пешеходна алея, училища, спирки и др.Обява T153-630НИЕ ВИ ПРЕДЛАГАМЕ: Безкомпромисно обслужване до финализиране на сделката, като ще получите БЕЗПЛАТНИ юридически консултации, съдействие за получаване на ИПОТЕЧЕН КРЕДИТ (до 100% финансиране!!!) при възможно НАЙ-ДОБРИ УСЛОВИЯ за клиента!За повече информация посетете офиса ни на адрес гр.Шумен, ул. Цар Иван Александър 80; тел.0894444532
Продава офис, гр. шумен, център

Продава офис, гр. шумен, център

€ 105.000,00
bazar.bg Офиси за продажба Шумен 30+ дни
Квадратура 21 m²
цена на кв.м 5.000,00 €
Офис за продажба с ПАРКОМЯСТО - кв. Център! Имотът е с площ от 21 кв.м. и се състои от офисна част и санитарен възел. ПОДОБРЕНИЯ: подменена ПВЦ дограма, подовата настилка е теракота. Отоплението е решено посредством КЛИМАТИК. Подходящо е за офис, козметично студио, ателие и др. Изложение: ЮГ.ТОП ЛОКАЦИЯ! Намира се в ЦЕНТРАЛНАТА част на града, в близост до административни учреждения, магазини, автобусни спирки и др.Обява T223 - 4641.НИЕ ВИ ПРЕДЛАГАМЕ: Безкомпромисно обслужване до финализиране на сделката, като ще получите БЕЗПЛАТНИ юридически консултации, съдействие за получаване на ИПОТЕЧЕН КРЕДИТ (до 100% финансиране!!!) при възможно НАЙ-ДОБРИ УСЛОВИЯ за клиента!За повече информация посетете офиса ни на адрес гр. Шумен, ул. Цар Иван Александър 80; тел: 0894444532
Продава офис, гр. шумен, център

Продава офис, гр. шумен, център

€ 103.000,00
bazar.bg Офиси за продажба Шумен 30+ дни
цена на кв.м 5.000,00 €
Продава се ОФИС в централната част на града. Помещението е с площ от 50 кв.м. и се намира на втори етаж в административна сграда. Състои се от входно антре и офис с кухненска част. Има общ санитарен възел на етажа. Подходящо е както за офис, така и за магазин, сервиз, ателие, салон за красота или друг вид дейност.Обява T114 - 68НИЕ ВИ ПРЕДЛАГАМЕ: Безкомпромисно обслужване до финализиране на сделката, като ще получите БЕЗПЛАТНИ юридически консултации, съдействие за получаване на ИПОТЕЧЕН КРЕДИТ (до 100% финансиране!!!) при възможно НАЙ-ДОБРИ УСЛОВИЯ за клиента!За повече информация посетете офиса ни на адрес гр. Шумен, ул. Цар Иван Александър 80; тел. 0894444532

Ето списъкът с основните градове: Офиси за продажба