Добави обява

Всички обявив категорията Офиси под наем в Област Шумен

Цена
Дата на публикуване
Квадратура
Етаж
Намерени: 314 обяви в категорията Офиси под наем в Област Шумен
Дава под наем офис, гр. шумен, център

Дава под наем офис, гр. шумен, център

€ 170,00
bazar.bg Офиси под наем Шумен 20 дни
Квадратура 37 m²
цена на кв.м 4,59 €
Отдаваме под наем офис на първи жилищен етаж в новопостроена бизнес сграда в близост до съда и общината. Отопление с климатик. Офиса е 37 кв.м., със собствен санитарен възел. Наем 170 евро и депозит. За огледи тел.0896343590, обява B-1044978
Дава под наем офис, гр. шумен, център

Дава под наем офис, гр. шумен, център

€ 170,00
bazar.bg Офиси под наем Шумен 21 дни
Квадратура 37 m²
цена на кв.м 4,59 €
Дългосрочно ! Построен нов офис непосредствено до съда на 1 етаж. 170 без ДДС
Дава под наем офис, гр. шумен, център

Дава под наем офис, гр. шумен, център

€ 140,00
bazar.bg Офиси под наем Шумен 27 дни
Квадратура 18 m²
цена на кв.м 7,78 €
Отдаваме под наем офис в ОФИС СГРАДА в административен център на града. В близост до общината и съда. На втори етаж. Подходящ за офис, кантора, ателие и др. Наем 140 евро и депозит. Отдава се под наем НЕОБЗАВЕДЕН! Отделен електромер. Общ санитарен възел на етаж. За огледи тел.0896343590, обява B-1182502
Дава под наем офис, гр. шумен, център

Дава под наем офис, гр. шумен, център

€ 700,00
bazar.bg Офиси под наем Шумен 27 дни
Квадратура 98 m²
цена на кв.м 7,14 €
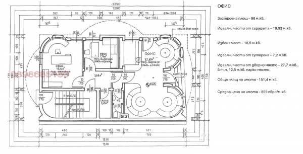
Давам под наем офис в центъра на гр. Шумен,Намиращ се на партерен етаж, състоящ се от три офис помещения обзаведени луксозно, тоалетна и сервизно помещение с обща площ на етажа 98 м.кв., както и 19,93 м.кв. от идеалните масти на сградата. Етажа е климатизиран, като може да бъде включен към локалното отопление на сградата на газ, като има и резервен вариант - котел на нафта. Сутеренна част състояща се от котелно и склад за гориво /нафта/ и санитарен възел с обща площ на етажа 18,5 м.кв., както и 7,2 м.кв. от идеалните части на сутерена.Локация в непосредствена близост да държавни и общински институции: община, съд, НАП, НОИ, Агенция по вписванията, нотариуси, адвокатски кантори и други, както и в близост до училища и детски градини.За контакти тел.: 0898685150.
Дава под наем офис, гр. шумен, център

Дава под наем офис, гр. шумен, център

€ 280,00
bazar.bg Офиси под наем Шумен 27 дни
Квадратура 45 m²
цена на кв.м 6,22 €
Дава се под наем офис, находящ се в административен център гр. Шумен - до Съдебна палата и Адвокатска колегия.Ново строителство, функционираща офис сграда с асансьор. Адресът е улица 'Съединение' 119А.Офисът се намира на втори етаж, квадратура 45 кв.м, напълно обзаведен, със собствен санитарен възел. Отопление с климатик.Южно изложение, с изглед към вътрешния двор на сградата и панорама към Паметник 1300 години България . Офисът е изключително светъл, топъл и тих, с много ниски сметки за електричество. Подходящ за адвокатска кантора, счетоводна къща, консултантска дейност или друг тип административен бизнес.???? За повече информация се обадете на посочения номер или чрез имейл.
Дава под наем офис, гр. шумен, център

Дава под наем офис, гр. шумен, център

€ 205,00
bazar.bg Офиси под наем Шумен 28 дни
Квадратура 68 m²
цена на кв.м 3,01 €
Отдава се помещение подходящо за разнородни дейности:офис, магазин,кантора,студио за красота, учебен център и др.За повече информация, моля потърсете ни на посоченият тел:0897836446.
Дава под наем офис, гр. шумен, център

Дава под наем офис, гр. шумен, център

€ 750,00
bazar.bg Офиси под наем Шумен 28 дни
Квадратура 55 m²
цена на кв.м 13,64 €
Магазин на партерно ниво в близост до 'Подоводница'. Оживен район. Помещението е подходящо и за офис. Номер на обявата: наем А26. За повече информация по обекта, заповядайте в офиса на Агенция ПРЕЦИЗ, находящ се в гр.Шумен, бул.Симеон Велики 46 Г, ет 2, офис 2 /Крайречен булевард - срещу Новата Поликлиника/, тел: 054 800196 и 0897836446, email: [email protected]
Дава под наем офис, гр. шумен, център

Дава под наем офис, гр. шумен, център

€ 1.350,00
bazar.bg Офиси под наем Шумен 28 дни
Квадратура 290 m²
цена на кв.м 4,66 €
Два офисни етажа (втори и трети от триетажна сграда), със самостоятелни входове и стълбище. Всеки етаж е с баня и тоалетна. На всеки етаж има отделни климатици. Подът е с мокет и гранитогрес. Сградата е изолирана, има тройни стъклопакети, изграден контролиран достъп и домофонна инсталация. Има оптичен интернет и СОТ. Номер на обява: Наем А36. За повече информация по обекта, заповядайте в офиса на Агенция ПРЕЦИЗ, находящ се в гр.Шумен, бул.Симеон Велики 46 Г, ет 2, офис 2 /Крайречен булевард - срещу Новата Поликлиника/, тел: 054 800196 и 0897836446, email: [email protected]
Дава под наем офис, гр. шумен, добруджански

Дава под наем офис, гр. шумен, добруджански

€ 76.750,00
bazar.bg Офиси под наем Шумен 30 дни
Квадратура 90 m²
цена на кв.м 852,78 €
Агенция 'Имоти Плюс' отдава под наем две огледални помещения, подходящи за офис или магазин, с площ от 90 кв.м. всяко.Помещенията са напълно реновирани с висококачествени материали и предлагат отлични условия за всякакъв тип бизнес. Благодарение на големите витрини и високи тавани, пространствата са светли и приветливи, с много естествена светлина. Местоположението е на главен булевард с голям клиентопоток и отлична видимост, както и комуникативна локация с лесен достъп до публичен транспорт и основни пътни артерии. Помещенията са идеални както за офисни нужди, така и за търговска дейност. Пространството може лесно да бъде адаптирано спрямо изискванията на наемателя.Условия за наемане: наемателят заплаща наема за първия месец, депозит в размер на един наем, който се задържа от наемодателя до напускане на имота, и еднократна комисионна за агенцията в размер на половин наем, която се заплаща при подписване на договора за наем.За повече информация и огледи посетете офиса ни на адрес гр. Шумен, ул.'Цар Иван Александър' 50, Телефон: +359895053535
Дава под наем офис, гр. шумен, център

Дава под наем офис, гр. шумен, център

€ 700,00
bazar.bg Офиси под наем Шумен 30+ дни
Квадратура 98 m²
цена на кв.м 7,14 €
Агенция My Place отдава под наем ОФИСИ с ПАРКОМЯСТО, разположени на партерен етаж с площ 98 кв.м - Център, административна част на града. Състои се от: ТРИ обзаведени офис помещения, кухненски кът и тоалетна. Етажът е климатизиран, като може да бъде включен към локалното отопление на сградата на газ, като има и резервен вариант - котел на нафта. Сутеренна част състояща се от котелно и склад за гориво /нафта/ и санитарен възел с обща площ на етажа 18,5 м.кв. Сградата е изградена на плоча, от тухла, алуминиева гръцка дограма с термомост, санирана, СОТ, контрол на достъпа, видеонаблюдение, оптичен интернет, с право на ползване на идеалните части от озеленен поддържан двор от 117 м.кв. Локация в непосредствена близост да държавни и общински институции: община, съд, НАП, НОИ, Агенция по вписванията, нотариуси, адвокатски кантори и други, както и в близост до училища и детски градини.Условията за отдаване под наем са следните: при подписване на договор наемателят дължи наемната цена за първият месец и депозит в размер на един наем както и половин наем комисионна на агенцията.За повече информация посетете нашия офис в гр. Шумен на бул. 'Велики Преслав' 52 или позвънете на 089 903 0155 - Владислав Маринов.НОМЕР НА ОБЯВА - 2597
Дава под наем офис, гр. шумен, пазара

Дава под наем офис, гр. шумен, пазара

€ 300,00
bazar.bg Офиси под наем Шумен 30+ дни
Квадратура 50 m²
цена на кв.м 6,00 €
Агенция My Place отдава под наем имот с ПОТЕНЦИАЛ на ТЪРГОВСКО ПОМЕЩЕНИЕ или ЖИЛИЩЕ с площ 50 кв.м Пазара, до Студентски парк. Състои се от: ДВЕ отделни помещения, едното от които с кухненски бокс, килер, тоалетна и голяма партерна тераса. Има възможност да се отдаде необзаведено!Разположен на партерен етаж.Отопление/охлаждане - КЛИМАТИК.Подходящ за: Офис Кантора Кабинет Студио за красота, козметика, маникюр, масажи или терапии ЖилищеБОНУС към имота - партерна открита тераса с кът за отдих, идеална за глътка свежест преди или по време на работа, в обедната почивка или провеждане на работни срещи на открито.С изключително удобен достъп и постоянно свободно паркиране.Условията за отдаване под наем са следните: при подписване на договор наемателят дължи наемната цена за първия месец и депозит в размер на един наем както и половин наем комисионна на агенцията.За повече информация посетете нашия офис в гр. Шумен на бул. 'Велики Преслав' 52 или позвънете на 089 903 0155 - Владислав Маринов.НОМЕР НА ОБЯВА - 2600
Дава под наем офис, гр. шумен, пазара

Дава под наем офис, гр. шумен, пазара

€ 400,00
bazar.bg Офиси под наем Шумен 30+ дни
Квадратура 55 m²
цена на кв.м 7,27 €
КОД НА ОБЯВА: Е4132Естера Естейт дава под наем Офис:- Локация: гр. Шумен, кв. Пазара.- Цена: 400 - Общa площ: 55 кв.м- Разпределение: 2 самостоятелни помещения- Санитарни помещения: 1 тоалетна- Подходящ за: счетоводна кантора, консултантски услуги, образователен център, козметичен кабинет, IT или креативно студио- Предимства на имота: функционално и удобно разпределение с отделни работни зони; светли помещения, осигуряващи комфортна работна среда; лесна ориентация за клиенти и партньори; отлична видимост и бърз достъп от ключови точки в града; възможност за организиране на приемна/чакалня и отделен работен кабинет- Локация и достъп: в непосредствена близост до оживени търговски улици, административни услуги, заведения и ежедневни удобства; удобни транспортни връзки и бърз достъп до централни части на Шумен.- Квартал Пазара в Шумен се отличава с динамична градска среда, постоянен човекопоток и богата търговска инфраструктура. - Районът предлага лесен достъп до услуги, банки, заведения и транспорт, което го прави предпочитан за развитие на различни бизнес дейности.Ние ще ви помогнем не само да откриете желания имот, но и да го финансирате лесно, сигурно и без стрес. Свържете се с нас на тел. 0889999838, имейл: [email protected], или посетете нашият офис: гр. Шумен, ул. Добри Войников 14, ет.2, офис 7.
Дава под наем офис, гр. шумен, център

Дава под наем офис, гр. шумен, център

€ 700,00
bazar.bg Офиси под наем Шумен 30+ дни
Квадратура 98 m²
цена на кв.м 7,14 €
Давам под наем офис в центъра на гр. Шумен,Намиращ се на партерен етаж, състоящ се от три офис помещения обзаведени луксозно, тоалетна и сервизно помещение с обща площ на етажа 98 м.кв., както и 19,93 м.кв. от идеалните масти на сградата. Етажа е климатизиран, като може да бъде включен към локалното отопление на сградата на газ, като има и резервен вариант - котел на нафта. Сутеренна част състояща се от котелно и склад за гориво /нафта/ и санитарен възел с обща площ на етажа 18,5 м.кв., както и 7,2 м.кв. от идеалните части на сутерена.Към обекта са включени 23,64% от идеалните части от правото на строеж, заедно с 23,64% идеални части от земята, на които съответстват 27,7 м.кв., в т.ч. 12,5 м.кв. персонално парко място 4.Сградата е изградена на плоча, от тухла, алуминиева гръцка дограма с термомост, санирана, СОТ, контрол на достъпа, видеонаблюдение, оптичен интернет, с право на ползване на идеалните части от озеленен поддържан двор от 117 м.кв. Локация в непосредствена близост да държавни и общински институции: община, съд, НАП, НОИ, Агенция по вписванията, нотариуси, адвокатски кантори и други, както и в близост до училища и детски градини.За контакти тел.: 0898685150.
Дава под наем офис, гр. шумен, математическа гимназия

Дава под наем офис, гр. шумен, математическа гимназия

€ 84.417,00
bazar.bg Офиси под наем Шумен 30+ дни
Квадратура 152 m²
цена на кв.м 555,38 €
Агенция 'ИМОТИ ПЛЮС' предлага под наем помещение с площ от 152 кв.м., разположено на главен булевард, в непосредствена близост до оживена пешеходна зона. Имотът се намира на второ ниво и е с южно изложение към булеварда, което осигурява отлична видимост за реклама благодарение на големите витрини.Характеристики на помещението:*Височина на тавана: 3,60 м*Алуминиева дограма с термомост и стъклопакет*Кухненски бокс*Санитарен възел*Колонен климатик*Окабеляване за телефон, кабелна телевизия и СОТ*Ниски разходи за отопление*ПаркоместаИмотът е идеален за вашия бизнес, осигурявайки комфорт и удобство на престижна локация.Условия за наемане: наемателят заплаща наема за първия месец, депозит в размер на един наем, който се задържа от наемодателя до напускане на имота, и еднократна комисионна за агенцията в размер на половин наем, която се заплаща при подписване на договора за наем.За повече информация посетете офиса ни на адрес гр. Шумен, ул. Цар Иван Александър 50, Телефон: +359895053535/ +359898595932Ние Ви предлагаме безплатно съдействие за отпускане на ипотечни и потребителски кредити. Преференциални условия!
Дава под наем офис, гр. шумен, център

Дава под наем офис, гр. шумен, център

€ 285,00
bazar.bg Офиси под наем Шумен 30+ дни
Квадратура 67 m²
цена на кв.м 4,25 €
КОД НА ОБЯВА: Е4213С КЛЮЧ ЗА ИМОТАЕстера Естейт предлага ЕКСКЛУЗИВНО под наем офис с паркомясто, разположен в административната част на града. Имотът се състои от две работни помещения с климатици и собствен санитарен възел. Офисът е просторен и слънчев, подходящ за различни бизнес дейности.Наемна цена: 285 ЕВРО.Депозит: 1 наемСъздайте дом за вашия бизнес!Ние ще ви помогнем не само да откриете желания имот, но и да го финансирате лесно, сигурно и без стрес. Свържете се с нас на тел. ???? 0889999838, имейл: ???? [email protected], или посетете нашият офис: ???? гр. Шумен, ул. Добри Войников 14, ет.2, офис 7.
Дава под наем офис, гр. шумен, център

Дава под наем офис, гр. шумен, център

€ 400,00
bazar.bg Офиси под наем Шумен 30+ дни
Квадратура 180 m²
цена на кв.м 2,22 €
Агенция 'Дом-Ко Шумен' отдава под наем просторно и функционално офис помещение по бул. 'Ришки проход' с площ от 180м2. Едно голямо светло и просторно помещение с възможност за преграждане. Големите прозорци осигуряват изобилие от естествена светлина и създават усещане за простор и комфорт. Санитерен възел и кухненски оборудван бокс. Два климатика.Имотът е изпълнен със съвременни интериорни решения и висококачествени материали, които създават представителна и професионална работна среда. Подходящ е за компании, търсещи престижна локация, добра видимост и удобства за своя екип.Предимства и удобства: ДВЕ ПАРКОМЕСТА ПРЕД СГРАДАТАОтлична видимост и лесен достъп.
Дава под наем офис, гр. шумен, център

Дава под наем офис, гр. шумен, център

€ 140,00
bazar.bg Офиси под наем Шумен 30+ дни
Квадратура 18 m²
цена на кв.м 7,78 €
Отдаваме под наем офис в ОФИС СГРАДА в административен център на града. В близост до общината и съда. На втори етаж. Подходящ за офис, кантора, ателие и др. Наем 140 евро и депозит. Отдава се под наем НЕОБЗАВЕДЕН! Отделен електромер. Общ санитарен възел на етажа. За огледи тел.0896343590, обява B-1182506
Дава под наем офис, гр. шумен, център

Дава под наем офис, гр. шумен, център

€ 140,00
bazar.bg Офиси под наем Шумен 30+ дни
Квадратура 18 m²
цена на кв.м 7,78 €
Отдава се под наем офис кв. Център! Помещението е с обща площ от 18 кв.м. и следното разпределение: търговска част, складово помещение и общ санитарен възел. Отоплението/охлаждането е на ТОК. Подобрения: сменена PVC дограма, подовите настилки са теракота. Предлага се необзаведено. Помещението е подходящо за офис, ателие, счетоводна кантора и др.Намира се на много КОМУНИКАТИВНО място с голям ЧОВЕКОПОТОК, в близост до административни учреждения, централна пешеходна алея, магазини, спирки и др.Обява R1356- 3837!Условията за отдаване под наем на имот предлаган от агенцията са следните: наемателят заплаща наема за първия месец; един наема депозит, който се пази в наемодателя до напускане на имота от наемателя; и половин наем (не по-малко от 100 евро!) комисион за агенцията, който се заплаща еднократно при подписване на договора за наем! Договора за наем между двете страни (наемател наемодател) се изготвя от агенцията безплатно!За повече информация посетете офиса ни на адрес гр. Шумен, ул. Цар Иван Александър 80; тел: 0878444763
Дава под наем офис, гр. шумен, тракия

Дава под наем офис, гр. шумен, тракия

€ 180,00
bazar.bg Офиси под наем Шумен 30+ дни
Квадратура 35 m²
цена на кв.м 5,14 €
Дава се под наем офис с площ 35 кв.м в Тракия. Състои се от : една стая и санитарен възел. Имота разполага с климатик. Офиса е със сменена ПВЦ дограма, сменена врата и санитарното помещение е селд основен ремонт. Месечен наем 180 евро + един депозит.Обява 71.За допълнителна информация и нови оферти, телефон за контакт: 088 554 7374 Александър Андреев.Ние Ви гарантираме качествено и професионално обслужване до финализиране на сделката, както и БЕЗПЛАТНИ юридически консултации, 100% съдействие със 100% финансиране на ипотечен кредит при възможно най-добрите условия за нашите клиенти. Заложете на професионализма и дългогодишният ни опит.
Дава под наем офис, гр. шумен, център

Дава под наем офис, гр. шумен, център

€ 222,00
bazar.bg Офиси под наем Шумен 30+ дни
Квадратура 35 m²
цена на кв.м 6,34 €
Отдава се под наем помещение функциониращо до момента като *фризьорски салон*. Имотът се намира в *Деу Център* отлична локация, с постоянен човекопоток и удобен достъп.
Дава под наем офис, гр. шумен, център

Дава под наем офис, гр. шумен, център

€ 333,00
bazar.bg Офиси под наем Шумен 30+ дни
Квадратура 60 m²
цена на кв.м 5,55 €
Агенция My Place отдава под наем офис с площ 60 кв.м., като може да се използва и за офис, салон за красота и т.н. Състои се от: основна зала, отделен малък офис, самоястоятелен санитарен възел и балкон. Има възможност за наемане и на съседното помещение с площ 35 кв.м.Отопление - КЛИМАТИКУсловията за отдаване под наем са следните: при подписване на договор наемателят дължи наемната цена за първия месец и депозит в размер на един наем както и половин наем комисионна на агенцията.За повече информация посетете нашия офис в гр. Шумен на бул. 'Велики Преслав' 52 или позвънете на 089 903 0155 - Владислав Маринов.
Дава под наем офис, гр. шумен, център

Дава под наем офис, гр. шумен, център

€ 220,00
bazar.bg Офиси под наем Шумен 30+ дни
Квадратура 35 m²
цена на кв.м 6,29 €
Агенция My Place отдава под наем помещение със статут на фризьорски салон с площ 35 кв.м., като може да се използва и за офис и т.н. Има възможност за наемане и на съседното помещение с площ 70 кв.м., което е със самоястоятелен санитарен възел и балкон.Условията за отдаване под наем са следните: при подписване на договор наемателят дължи наемната цена за първия месец и депозит в размер на един наем както и половин наем комисионна на агенцията.За повече информация посетете нашия офис в гр. Шумен на бул. 'Велики Преслав' 52 или позвънете на 089 903 0155 - Владислав Маринов.
Дава под наем офис, гр. шумен, тракия

Дава под наем офис, гр. шумен, тракия

€ 200,00
bazar.bg Офиси под наем Шумен 30+ дни
Квадратура 50 m²
цена на кв.м 4,00 €
Самостоятелно помещение в офис сграда.Климатизирано, луксозни общи части.Безплатен паркинг в собствен двор.Може да се отдаде обзаведено.
Дава под наем офис, гр. шумен, център

Дава под наем офис, гр. шумен, център

€ 280,00
bazar.bg Офиси под наем Шумен 30+ дни
Квадратура 45 m²
цена на кв.м 6,22 €
Дава се под наем офис, находящ се в административен център Шумен - до Съдебна палата и Адвокатска колегия. Ново строителство, функционираща офис сграда с асансьор. Офисът се намира на втори етаж, квадратура 45 кв.м, напълно обзаведен, със собствен санитарен възел. Отопление с климатик. Южно изложение, с изглед към вътрешния двор на сградата и панорама към Паметник 1300 години България. Топъл и тих, с много ниски сметки за електричество.
Дава под наем офис, гр. шумен, център

Дава под наем офис, гр. шумен, център

€ 300,00
bazar.bg Офиси под наем Шумен 30+ дни
Квадратура 60 m²
цена на кв.м 5,00 €
ПРЕДЛАГАМЕ ПОМЕЩЕНИЕ ПОД НАЕМ В ОФИС-СГРАДА,В АДМИНИСТРАТИВНАТА ЧАСТ НА ГРАДА,С ЮЖНО ИЗЛОЖЕНИЕ.РАЗПРЕДЕЛЕН Е НА ОСНОВНО ПОМЕЩЕНИЕ,САНИТАРЕН ВЪЗЕЛ И КОРИДОР.ПОДХОДЯЩО Е ЗА ОФИС,СТУДИО ЗА КРАСОТА,СЧЕТОВОДНА КЪЩА И ДРУГ ВИД ДЕЙНОСТ.РЕМОНТИРАН,С PVC ДОГРАМА,ТЕРАКОТ,КЛИМАТИК.НАМИРА СЕ В БЛИЗОСТ ДО СЪДЕБНА ПАЛАТА.В.АГЕНЦИЯ 'ПРЕСТИЖ' Е С ДЪЛГОГОДИШЕН ОПИТ В СФЕРАТА НА НЕДВИЖИМИ ИМОТИ. ПРИ НАС ЩЕ ПОЛУЧИТЕ ПЪЛНО ОБСЛУЖВАНЕ ДО ФИНАЛИЗИРАНЕ НА СДЕЛКАТА, ЗАСТРАХОВАТЕЛНИ УСЛУГИ И СЪДЕЙСТВИЕ ЗА БАНКОВО КРЕДИТИРАНЕ. ЗА ПОВЕЧЕ ИНФОРМАЦИЯ И ОФЕРТИ, ТЕЛ: 087 87 83 767 СУЗАНА И 0894-342-092 НЕЛИ
Дава под наем офис, гр. шумен, център

Дава под наем офис, гр. шумен, център

€ 200,00
bazar.bg Офиси под наем Шумен 30+ дни
Квадратура 35 m²
цена на кв.м 5,71 €
Имоти Плюс предлага под наем едностаен имот с отлична локация до Община Шумен!Този функционален имот с площ от 35 кв.м е разположен в централната част на Шумен, в непосредствена близост до Община Шумен, административни сгради, магазини и транспортни връзки.Имотът включва: Основна стая, подходяща за дневна или работно пространство; Офисно помещение, което да бъде преустроено и да се изгради кухненски бокс; Отделно санитарно помещение; Коридор, осигуряващ удобен достъп до всички части на имота.Имотът е идеален както за жилищни нужди, така и за офис под наем. Гъвкавото му разпределение позволява лесно адаптиране според нуждите на наемателя.Предимства: Топ локация в централната част на града; Гъвкаво предназначение жилище или офис; Отлични условия за наемане.За повече информация и организиране на огледи Имоти Плюс е на Ваше разположение!Условия за наемане: наемателят заплаща наема за първия месец, депозит в размер на един наем, който се задържа от наемодателя до напускане на имота, и еднократна комисионна за агенцията в размер на половин наем, която се заплаща при подписване на договора за наем.За повече информация и огледи посетете офиса ни на адрес гр. Шумен, ул. Цар Иван Александър 50, Телефон: +359895053535
Дава под наем офис, гр. шумен, център

Дава под наем офис, гр. шумен, център

€ 400,00
bazar.bg Офиси под наем Шумен 30+ дни
Квадратура 40 m²
цена на кв.м 10,00 €
Агенция My Place отдава под наем партерно помещение с площ от 40 кв.м - ЦЕНТЪР, в района на училище 'Илия Р. Блъсков' - подходящо за офис, студио, салон за красота, ателие. Със собствен санитарен възел. Разполага с климатик, хладилник, диспенсър за вода. С възможност за предоставяне на интернет и телевизия. Има възможност да се обособят ДВЕ работни места. Отопление - КЛИМАТИК.Условията за отдаване под наем са следните: при подписване на договор наемателят дължи наемната цена за първият месец и депозит в размер на един наем както и половин наем комисионна на агенцията.За повече информация посетете нашия офис в гр. Шумен на бул. 'Велики Преслав' 52 или позвънете на 089 903 0155 - Владислав Маринов.НОМЕР НА ОБЯВА - 2532
Дава под наем офис, гр. шумен, център

Дава под наем офис, гр. шумен, център

€ 260,00
bazar.bg Офиси под наем Шумен 30+ дни
Квадратура 46 m²
цена на кв.м 5,65 €
Предлагаме под наем светъл и функционален офис находящ се на улица Бачо Киро 5 с площ 46 кв.м., разположен в идеалния център на града на няколко минути от ключови административни институции, финансови учреждения, основни транспортни връзки, банкови офиси, спирки на градски транспорт и главни пешеходни зони.. В сграда със АСАНСЬОР построена през 2015 година. Състои се от две помещения и баня и тоалетна. Подходящ за адвокатско кантора, счетоводна кантора, юридически и консултантски услуги;счетоводни и административни дейности,професионални кабинети и други дейности, изискващи престижна и комуникативна локация поради ключовата локация близо до Съдебна палата и Паспортна служба. Помещението предлага комбинирани предимства от централно разположение, удобства и професионална атмосфера, което го прави отличен избор за компании, стремящи се към качество и представителност.Реф. :25412За повече информация, моля обадете се на - 0877555097 или заповядайте в офиса на агенцията: гр. Шумен ул. Цар Иван Александър 42. Нашите нови и актуални предложения, можете да разгледате в нашия сайт www.danayaimoti.com Ние ще намерим за вас желания имот и ще ви помогнем да го придобиете. За нас е важно да сте наш клиент защото: Вашето доверие е нашият капитал! Вашите цели са нашата мисия!
Дава под наем офис, гр. шумен, център

Дава под наем офис, гр. шумен, център

€ 100,00
bazar.bg Офиси под наем Шумен 30+ дни
Квадратура 20 m²
цена на кв.м 5,00 €
Помещение ПОД НАЕМ в района на ЦЕНТЪРА в гр. Шумен с площ 20кв.м.. Подходящо за извършване на козметични или възтановителни услуги, офис и др.
Дава под наем офис, гр. шумен, тракия

Дава под наем офис, гр. шумен, тракия

€ 200,00
bazar.bg Офиси под наем Шумен 30+ дни
Квадратура 50 m²
цена на кв.м 4,00 €
Обзаведено помещение в офис сграда. Луксозно обзаведено. Безплатно паркиране в собствен двор. Климатизирано.
Дава под наем офис, гр. шумен, център

Дава под наем офис, гр. шумен, център

€ 250,00
bazar.bg Офиси под наем Шумен 30+ дни
Квадратура 50 m²
цена на кв.м 5,00 €
Помещение ПОД НАЕМ в централната част на гр. Шумен с площ - 50кв.м. със санитарен възел към него. Подходящо за извършване на козметични или възстановителни услуги, офис, магазин, склад, продажби на дребно и др.
Дава под наем офис, гр. шумен, център

Дава под наем офис, гр. шумен, център

€ 154,00
bazar.bg Офиси под наем Шумен 30+ дни
Квадратура 16 m²
цена на кв.м 9,63 €
Агенция My Place отдава под наем помещение с площ от 15 кв.м. подходящо за офис, ателие, салон и т.н. - Център, Кристал.В район с голям човекопоток!Отопление - КЛИМАТИКУсловията за отдаване под наем са следните: при подписване на договор наемателят дължи наемната цена за първият месец и депозит в размер на един наем както и половин наем комисионна на агенцията.За повече информация посетете нашия офис в гр. Шумен на бул. 'Велики Преслав' 52 или позвънете на 089 903 0155 - Владислав Маринов.
Дава под наем офис, гр. шумен, херсон

Дава под наем офис, гр. шумен, херсон

€ 130,00
bazar.bg Офиси под наем Шумен 30+ дни
Квадратура 20 m²
цена на кв.м 6,50 €
Не работя с агенции !Собственик отдава под наем офис на партерно ниво с обособено паркомясто отпред !Удобства: топла вода,собствен санитарен възел,нов климатик,свободен паркинг.Намира се във вътрешна уличка на 3 минути пеша от РУМ.Топъл и слънчев офис с източно изтожение подходящ за студио,козметичен салон,ателие и др.Самостоятелни партиди за ток и вода.При наемане се изисква наем+депозит.
Дава под наем  офис град Шумен, Център
      40 кв.м

Дава под наем офис град Шумен, Център 40 кв.м

€ 45.023.008,00
imoti.com Офиси под наем Шумен 30+ дни
Квадратура 40 m²
Етаж 2
цена на кв.м 1.125.575,20 €
~ ???? Аджест Хоум отдава под наем ОФИС в новопостроена сграда в центъра на града.~ Площ - 40 кв.м. ~ Етаж - 2 от 4 с асансьор ~ Разпределението по следния начин: основна зала, санитарен възел.~ ????️ Състояние - ПВЦ дограма, отоплението и охлаждане е чрез климатик, подова настилка теракота.~ Подходящо е за офис, лекарски кабинет, счетоводни услуги и други.~ Отдава се дългосрочно!~ Към офиса има възможност за наемане на парко място!~ ???? Локация - Намира се в района на съда.⚜️Домът е олицетворение на Вашия живот, затова не пестим усилия и предлагаме коректно цялостно обслужване, на разумна, без алтернативна цена. Юридическите и консултантски услуги за клиентите на фирмата са безплатни.⚜️За допълнителна информация, организиране на огледи или запознаване с новите ни, атрактивни и ексклузивни оферти, потърсете ни на следните телефони.☎️ 0894612238☎️ 0893361105☎️ 0896430100 или в офиса ни, находящ се на адрес: ул. 'Съединение' 111.
Дава под наем  офис град Шумен, Център
      30 кв.м

Дава под наем офис град Шумен, Център 30 кв.м

€ 60.030.678,00
imoti.com Офиси под наем Шумен 30+ дни
Квадратура 30 m²
Етаж 2
цена на кв.м 2.001.022,60 €
~ ???? Аджест Хоум отдава под наем ОФИС със парко място в новопостроена сграда в центъра на града.~ Площ - 30 кв.м. ~ Етаж - 2 от 4 с асансьор ~ Разпределението по следния начин: основна зала, санитарен възел.~ ????️ Състояние - ПВЦ дограма, отоплението и охлаждане е чрез климатик, подова настилка ламиниран паркет.~ Подходящо е за офис, лекарски кабинет, счетоводни услуги и други.~ Отдава се дългосрочно!~ Към офиса има парко място!~ ???? Локация - Намира се в района на съда.⚜️Домът е олицетворение на Вашия живот, затова не пестим усилия и предлагаме коректно цялостно обслужване, на разумна, без алтернативна цена. Юридическите и консултантски услуги за клиентите на фирмата са безплатни.⚜️За допълнителна информация, организиране на огледи или запознаване с новите ни, атрактивни и ексклузивни оферти, потърсете ни на следните телефони.☎️ 0894612238☎️ 0893361105☎️ 0896430100 или в офиса ни, находящ се на адрес: ул. 'Съединение' 111.
Дава под наем  офис град Шумен, Център
      35 кв.м

Дава под наем офис град Шумен, Център 35 кв.м

€ 20.039.117,00
imoti.com Офиси под наем Шумен 30+ дни
Квадратура 35 m²
Етаж 1
цена на кв.м 572.546,20 €
Имоти Плюс предлага под наем едностаен имот с отлична локация до Община Шумен!Този функционален имот с площ от 35 кв.м е разположен в централната част на Шумен, в непосредствена близост до Община Шумен, административни сгради, магазини и транспортни връзки.Имотът включва: Основна стая, подходяща за дневна или работно пространство; Офисно помещение, което да бъде преустроено и да се изгради кухненски бокс; Отделно санитарно помещение; Коридор, осигуряващ удобен достъп до всички части на имота.Имотът е идеален както за жилищни нужди, така и за офис под наем. Гъвкавото му разпределение позволява лесно адаптиране според нуждите на наемателя.Предимства: Топ локация в централната част на града; Гъвкаво предназначение жилище или офис; Отлични условия за наемане.За повече информация и организиране на огледи Имоти Плюс е на Ваше разположение!Условия за наемане: наемателят заплаща наема за първия месец, депозит в размер на един наем, който се задържа от наемодателя до напускане на имота, и еднократна комисионна за агенцията в размер на половин наем, която се заплаща при подписване на договора за наем.За повече информация и огледи посетете офиса ни на адрес гр. Шумен, ул. Цар Иван Александър 50, Телефон: +359895053535
Дава под наем  офис град Шумен, Център
      47 кв.м

Дава под наем офис град Шумен, Център 47 кв.м

€ 25.549.874,00
imoti.com Офиси под наем Шумен 30+ дни
Етаж 3
цена на кв.м 572.546,20 €
Отдавам под наем офис в офис сграда в района на съда и общината. Офиса е с площ от 47 кв.м., южно изложение, ново строителство. На трети етаж в сграда с асансьор. Отопление КЛИМАТИК! Собствен санитарен възел. Наем 255 евро и депозит. С възможност за наемане и на паркомясто за две коли до сградата за 60 евро. За огледи тел.0896343590, обява B-1419982Условия за наемане на имот чрез агенцията: Наемателят заплаща наема за първия месец, депозит в размер на един месечен наем(съхранява се в наемодателя до напускане на имота) и комисионна на агенцията в размер на половин наем еднократно(не по-малко от 100 евро). Договора за наем между наемател и наемодател се изготвя от агенцията безплатно!
Дава под наем офис, гр. шумен, център

Дава под наем офис, гр. шумен, център

€ 358,00
bazar.bg Офиси под наем Шумен 30+ дни
Квадратура 44 m²
цена на кв.м 8,14 €
Отдава се под наем офис в сграда НОВО СТРОИТЕЛСТВО. Имотът е с площ от 44 кв.м., разполага със собствен санитарен възел. Подобрения: PVC дограма, подовите настилки са теракота. Отоплението е решено посредством нов КЛИМАТИК. Предлага се необзаведен. Има възможност да бъде поставена светеща табела (реклама). Подходящо е за офис, козметично студио, медицински кабинет и др.ОТЛИЧНА ЛОКАЦИЯ, намира се в ТОП ЦЕНТЪР, в близост до административни учреждения, магазини, детски площадки, автобусни спирки и др.Обява R1021 - 2531!!!Условията за отдаване под наем на имот предлаган от агенцията са следните: наемателя заплаща наема за първия месец; един наем депозит, който се пази в наемодателя до напускане на имота от наемателя; и половин наем (не по-малко от 100лв.!!!) комисион за агенцията, който се заплаща еднократно при подписване на договора за наем! Договора за наем между двете страни (наемател наемодател) се изготвя от агенцията безплатно!За повече информация посетете офиса ни на адрес гр.Шумен, ул. Цар Иван Александър 80;тел.0889697600
Дава под наем офис, гр. шумен, център

Дава под наем офис, гр. шумен, център

€ 230,00
bazar.bg Офиси под наем Шумен 30+ дни
Квадратура 25 m²
цена на кв.м 9,20 €
RE/MAX Ви предлага - офис помещение ПОД НАЕМ.Обектът се намира в сграда ново строителство, в административната част на град Шумен. Характерно за района е голям човекопоток, наличие на магазини, офиси и градски транспорт.Характеристики на имота:- с чиста площ от 25 кв.м.;- в нова луксозна сграда;,- разположен на партерен етаж- подова настилка - гранитогрес;- санитарен възелОтоплението е чрез висок клас климатик.Сградата е с отлични общи части.Към офиса има покрито паркомясто с контролиран достъп.Предоставяме Ви висококачествена фотография и виртуални огледи на имота, БЕЗПЛАТНО юридическо обслужване.
Дава под наем офис, гр. шумен, център

Дава под наем офис, гр. шумен, център

€ 255,00
bazar.bg Офиси под наем Шумен 30+ дни
Квадратура 48 m²
цена на кв.м 5,31 €
Офис (бизнес имот) в нова сграда с контрол на достъпа и асансьор в административния център на града - Съд, Община. Климатизиран, самостоятелен санитарен възел. Подходящ за школи за обучение, семинари; кантора; кабинет и др. бизнес модели. Опция за наемане на паркомясто за 2 коли - 65 евро.
Дава под наем офис, гр. шумен, център

Дава под наем офис, гр. шумен, център

€ 255,00
bazar.bg Офиси под наем Шумен 30+ дни
Квадратура 48 m²
цена на кв.м 5,31 €
Офис (бизнес имот) в нова сграда с контрол на достъпа и асансьор в административния център на града - Съд, Община. Климатизиран. Подходящ за школи за обучение, семинари; кантора; кабинет и др. бизнес модели. Опция за наемане на паркомясто за 2 коли - 65 евро.
Дава под наем офис, гр. шумен, център

Дава под наем офис, гр. шумен, център

€ 150,00
bazar.bg Офиси под наем Шумен 30+ дни
Квадратура 23 m²
цена на кв.м 6,52 €
Не работя с агенции !Собственик отдава под наем офис на партерно ниво с обособено паркомясто отпред !Удобства: топла вода,собствен санитарен възел,нов климатик,свободен паркинг.Намира се във вътрешна уличка на 3 минути пеша от РУМ.Топъл и слънчев офис с източно изтожение.Самостоятелни партиди за ток и вода.При наемане се изисква наем+депозит.
Дава под наем  офис град Шумен, Център
      23 кв.м

Дава под наем офис град Шумен, Център 23 кв.м

€ 15.029.337,00
imoti.com Офиси под наем Шумен 30+ дни
Квадратура 23 m²
цена на кв.м 653.449,43 €
Не работя с агенции !Собственик отдава под наем офис на партерно ниво с обособено паркомясто отпред !Удобства: топла вода,собствен санитарен възел,нов климатик,свободен паркинг.Намира се във вътрешна уличка на 3 минути пеша от РУМ.Топъл и слънчев офис с източно изтожение.Самостоятелни партиди за ток и вода.При наемане се изисква наем+депозит.
Дава под наем офис, гр. шумен, център

Дава под наем офис, гр. шумен, център

€ 200,00
bazar.bg Офиси под наем Шумен 30+ дни
Квадратура 28 m²
цена на кв.м 7,14 €
Отдаваме под наем помещение в близост до съда и полицията. В тухлена сграда на партерно ниво. Подови настилки теракот. Към помещението има санитарен възел. Отопление с климатик. Подходящо за офис, ателие, студио, магазин и др. Наем 200 евро и депозит. За огледи тел.0896343590 Снежана Петрова, обява B-48288
Дава под наем  офис град Шумен, Център
      28 кв.м

Дава под наем офис град Шумен, Център 28 кв.м

€ 20.039.117,00
imoti.com Офиси под наем Шумен 30+ дни
Квадратура 28 m²
Етаж 1
цена на кв.м 715.682,75 €
Отдаваме под наем помещение в близост до съда и полицията. В тухлена сграда на партерно ниво. Подови настилки теракот. Към помещението има санитарен възел. Отопление с климатик. Подходящо за офис, ателие, студио, магазин и др. Наем 200 евро и депозит. За огледи тел.0896343590 Снежана Петрова, обява B-48288
Дава под наем офис, гр. шумен, център

Дава под наем офис, гр. шумен, център

€ 255,00
bazar.bg Офиси под наем Шумен 30+ дни
Квадратура 47 m²
цена на кв.м 5,43 €
Отдавам под наем офис в офис сграда в района на съда и общината. Офиса е с площ от 47 кв.м., южно изложение, ново строителство. На трети етаж в сграда с асансьор. Отопление КЛИМАТИК! Собствен санитарен възел. Наем 255 евро и депозит. С възможност за наемане и на паркомясто за две коли до сградата за 60 евро. За огледи тел.0896343590, обява B-1419982Условия за наемане на имот чрез агенцията: Наемателят заплаща наема за първия месец, депозит в размер на един месечен наем(съхранява се в наемодателя до напускане на имота) и комисионна на агенцията в размер на половин наем еднократно(не по-малко от 100 евро). Договора за наем между наемател и наемодател се изготвя от агенцията безплатно!
Дава под наем  офис град Шумен, Център
      44 кв.м

Дава под наем офис град Шумен, Център 44 кв.м

€ 30.058.675,00
imoti.com Офиси под наем Шумен 30+ дни
Квадратура 44 m²
цена на кв.м 683.151,70 €
Имоти Томов представя на Вашето внимание търговско помещение под наем в центъра на град Шумен, в близост до Хотел Мадара. Помещението е с площ от 44 кв.м, разположено е на партерен етаж и разполага със собствен санитарен възел. Подходящо за широк спектър от дейности, може да бъде използвано за офис, фризьорски, козметичен салон или друг вид търговска дейност.За повече информация посетете нашият офис, находящ се в гр. Шумен, ул. Васил Друмев 19 (бившата подводница) Имоти Томов, тел: 0897897568. Номер на обява: HZ3858
Дава под наем офис, гр. шумен, център

Дава под наем офис, гр. шумен, център

€ 300,00
bazar.bg Офиси под наем Шумен 30+ дни
Квадратура 45 m²
цена на кв.м 6,67 €
Дава се под наем офис в центъра на Шумен, в близост до Съдебната палата. Намира се в модерна офис сграда с асансьор. Офисът е на втори етаж, с площ 45 кв.м, напълно обзаведен и със самостоятелен санитарен възел. Отопление с климатик. Южно изложение, тих и топъл, с ниски разходи за ток.Наем: 300 евро.Агенция 'Дом-Ко Шумен' 0889 867 812 Даниела Колева
Дава под наем офис, гр. шумен, център

Дава под наем офис, гр. шумен, център

€ 360,00
bazar.bg Офиси под наем Шумен 30+ дни
Квадратура 55 m²
цена на кв.м 6,55 €
ОТДАВАМЕ ПОД НАЕМ ТЪРГОВСКО ПОМЕЩЕНИЕ,НОВО СТРОИТЕЛСТВО В АДМИНИСТРАТИВНАТА ЧАСТ НА ГРАДА.РАЗПОЛАГА С ТЪРГОВСКА ЧАСТ,САМОСТОЯТЕЛЕН САНИТАРЕН ВЪЗЕЛ И СКЛАД.ОТОПЛЕНИЕТО Е ПОСРЕДСТВОМ КЛИМАТИК.ОТДАВАМЕ И ДРУГИ ПОМЕЩЕНИЯ В СГРАДАТА.АГЕНЦИЯ 'ПРЕСТИЖ' Е С ДЪЛГОГОДИШЕН ОПИТ В СФЕРАТА НА НЕДВИЖИМИ ИМОТИ. ПРИ НАС ЩЕ ПОЛУЧИТЕ ПЪЛНО ОБСЛУЖВАНЕ ДО ФИНАЛИЗИРАНЕ НА СДЕЛКАТА, ЗАСТРАХОВАТЕЛНИ УСЛУГИ,СЪДЕЙСТВИЕ ЗА БАНКОВО КРЕДИТИРАНЕ И ИЗВЪРШВАНЕ НА РЕМОНТНИ ДЕЙНОСТИ. ЗА ПОВЕЧЕ ИНФОРМАЦИЯ И ОФЕРТИ, ТЕЛ: 087 87 83 767 СУЗАНА И 0894-342-092 НЕЛИ
Дава под наем офис, гр. шумен, център

Дава под наем офис, гр. шумен, център

bazar.bg Офиси под наем Шумен 30+ дни
Квадратура 16 m²
Кабинетът се намира на трети етаж в Стара поликлиника. Оборудван е за работа по специалност кожно-венерически болести. С общ служебен санитарен възел на етажа, отделно има санитарен възел за пациенти. Към кабинета има прилежащи идеални части от обща манипулационна зала.

Ето списъкът с основните градове: Офиси под наем